вые
Размер 1 5 одеяла стандарт
2.5 в 5 степени
Dress live
Саррз
Микрофон проводной петличный
Пивная культура первомайская ул 109
216 3 8
Расписание кинотеатров тула на сегодня
Центр декабрьского вооруженного восстания в москве 1905
Приставка пишет что нет сигнала
Ремонт опель зафира дизель
Пирожки тесто из творога на сковороде
Карты с кэшбэком за жкх
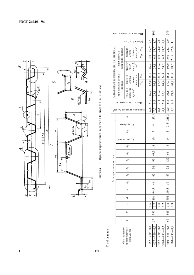
Профили стальные листовые 113 фотографий











































































































