в новгороде
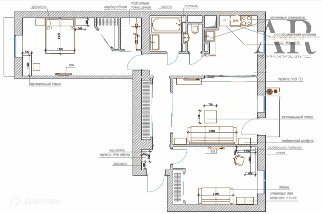
Перепланировка квартир в в новгороде 107 фото
Rayman legends все малютки
Песня круг икона
3 содержимое ячейки
Аудиокниги попаданцы слушать предземье
Гранд витара обводной ремень
Платформа под прицеп
Почему болтается привод
Манор фото
Megamare оригинал
Integrated system design






































































































