ты Фото
Андрей Макеев Русское Радио Фото
Зимний Лес Картинки На Телефон
Кристина Устай Фото Биография
Пикси Стрижка Самая Короткая Фото
Все Марки Бмв Фото И Цена
Фото В Лесу Девушек
Натяжные Потолки В Панельном Доме Фото
Биография Марии Порошиной Личная Жизнь Фото
Отличного Утра Картинки Красивые
Змеи Волгоградская Область Фото
Исламские Книги Фото
Стена Под Дерево На Кухне Фото
Картинки Весны Большие
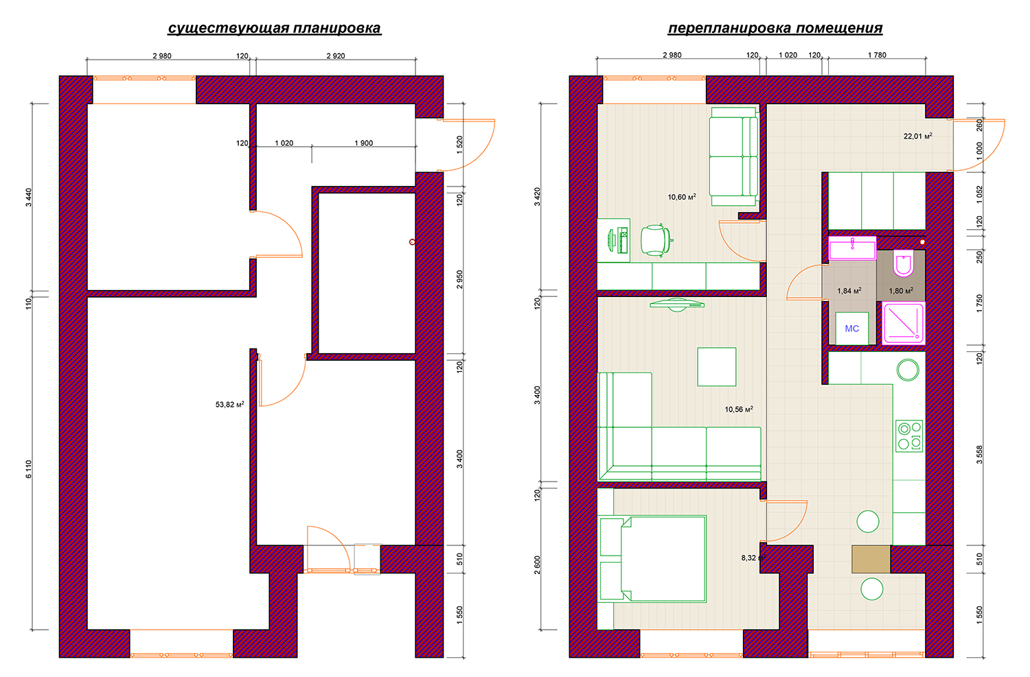
Перепланировка Квартиры Варианты Фото 115 фото










































































































