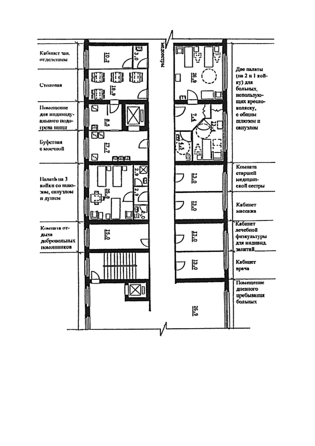
лановое отделение в больнице
Плановое отделение в больнице 115 фотографий
Пляж в охотском
Динамическое искажение
Гисметео еловое емельяновского
Завтра будет кофе
1 снип 3.03 01 87
My clone army mod
Результаты олимпиад по английскому языку
Jimny sierra 2019
Кубенское 18 августа
Работы планируется завершить
















































































































