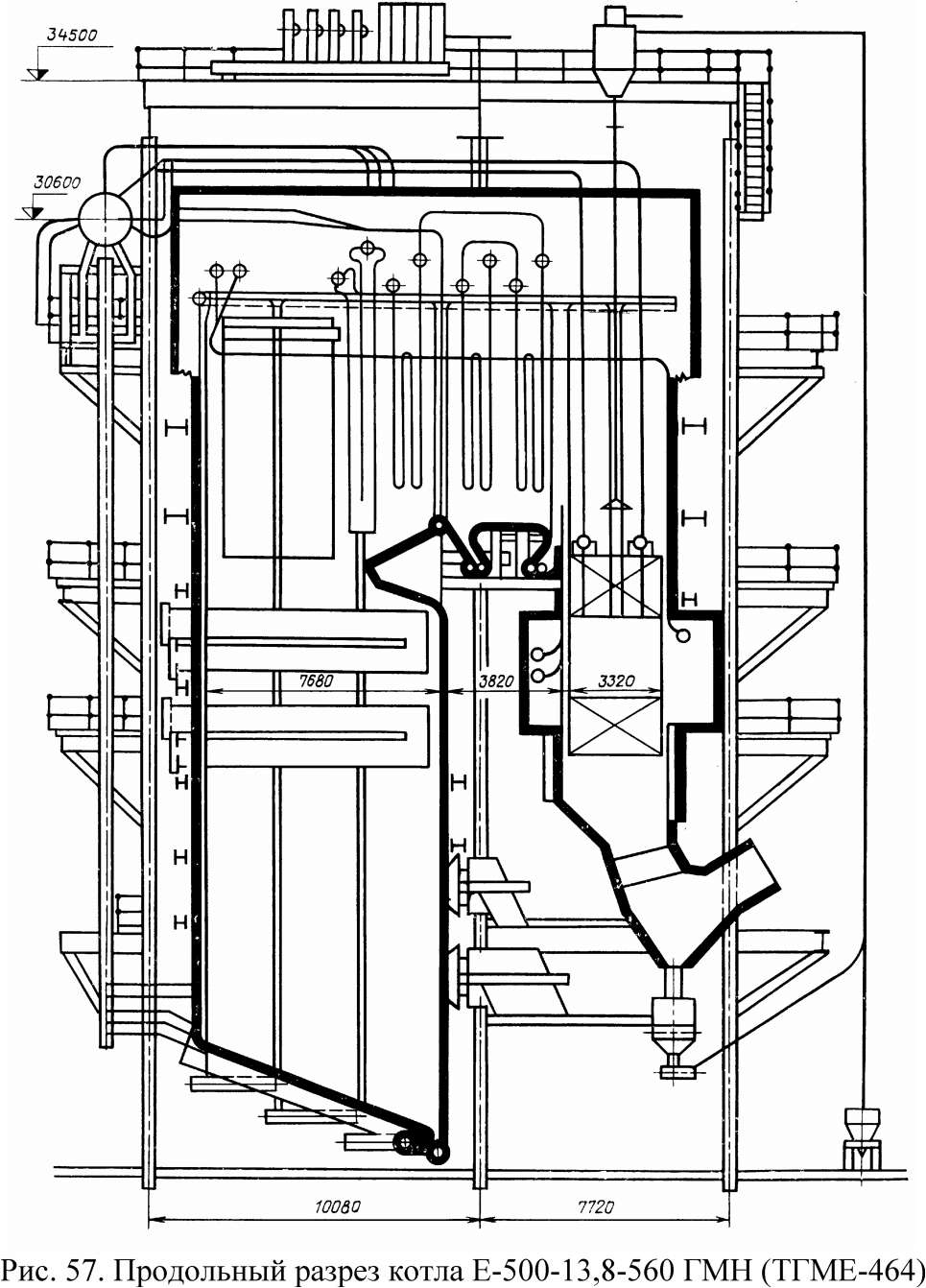
гм 464Котел тгм 464 127 фотографийФото сантехники в ваннойСду 03Б7 аллтрек5 кг крПесня с припевом аюЧика чика chicco2 класса русский язык упражнения 50Viewmodel gmodОтель абу дагиКак в 1с добавить график работы