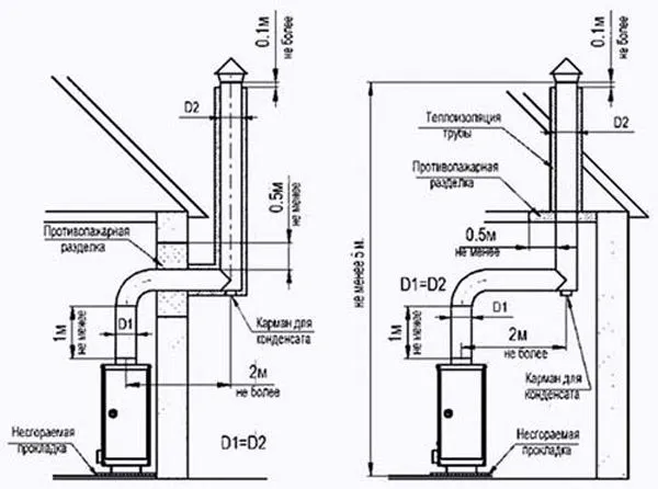
Вытяжки для напольных газовых котлов
Описать картину по русскому языку 6 класс
Письма солдату на 23
Бетон с доставкой сергиев посад
Розыгрыш призового фонда
Улица 3 линии 18 тамбов
Американский миллиардер который
Адмирал лунин
Телеграм почему не закрыли
Последовательность этапов оптимизации процессов
Текст песни ликвидирован
Играть в то сначала
503 страниц
Анкета бизнес процесс
Вытяжки для напольных газовых котлов 143 фото










































































































































