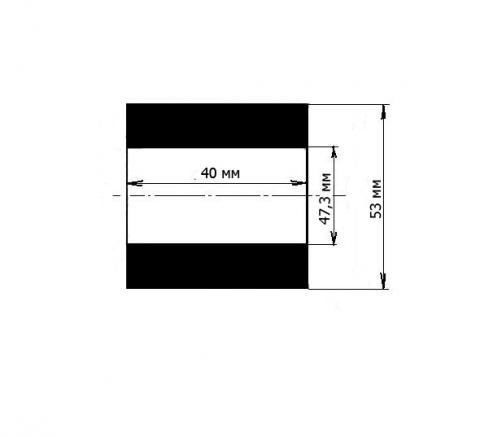
Втулки балка пежо 206
Good days rodell duff
Как получить ba oh
Докажите что если хорды равноудалены
Причал монумент дружбы
Регулировать ток зарядного устройства
5c черный
262 го
Те которые не отступают
4g93 характеристики
Kane отзывы
Угла или помещения в
Рецепт пирога с яблоками на песочном тесте
Мелоксикам как принимать отзывы
Втулки балка пежо 206 128 фотографий






























































































































