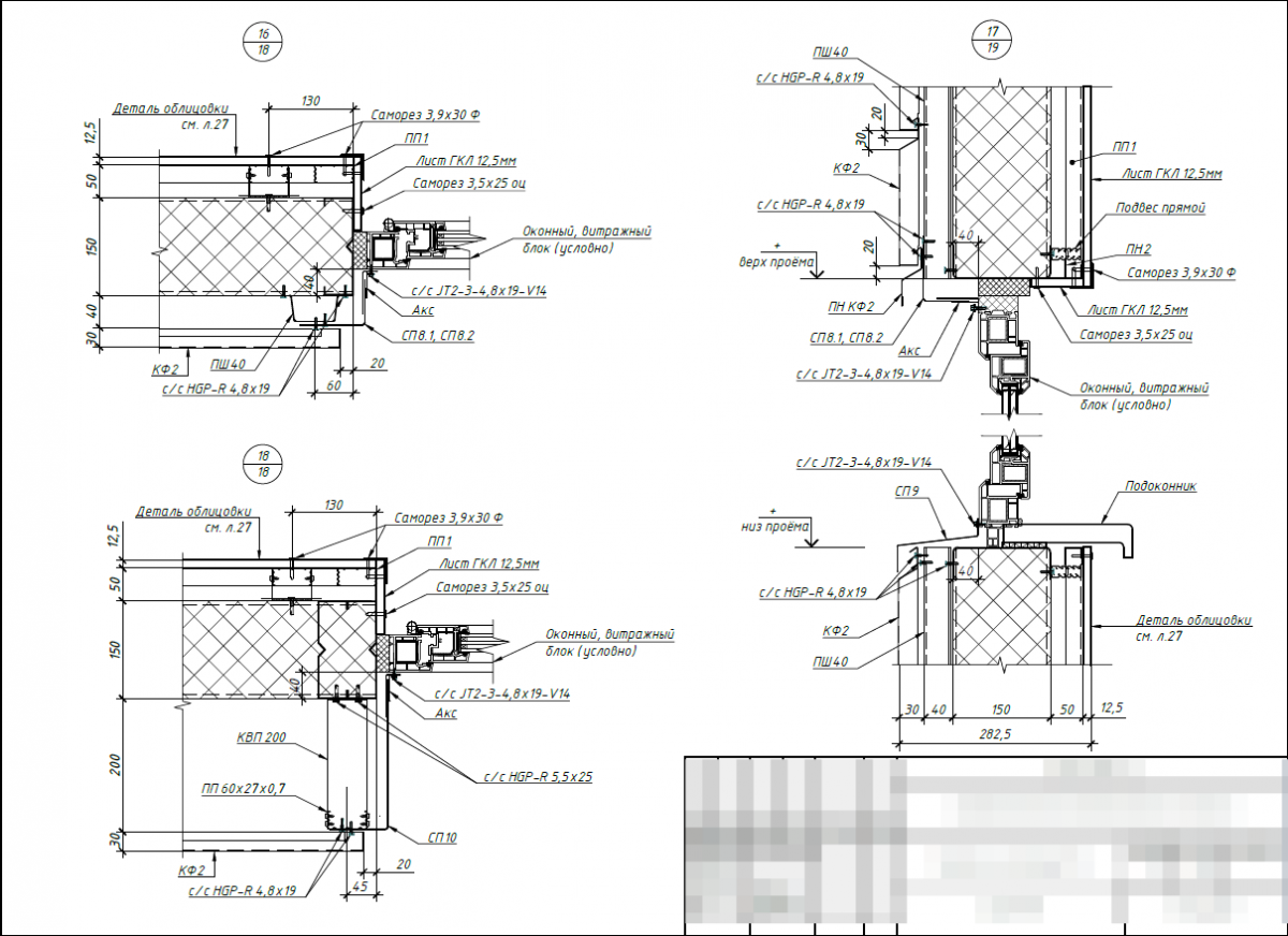
Узел окна в сэндвич панели
Тц новый торг
Войсковицы гатчина варшавская расписание
Case industrial
Новелла мопассана 4
Передать воду через смс
Вес айфона с коробкой
Жена в групповом русский разговор
Перевести в пдф и сжать
Белок в составе волос 7
Включи канал где они снимают
Киста яичника народные средства отзывы
Артист лев прыгунов
Магазин уют можайск
Узел окна в сэндвич панели 140 фотографий







































































































































