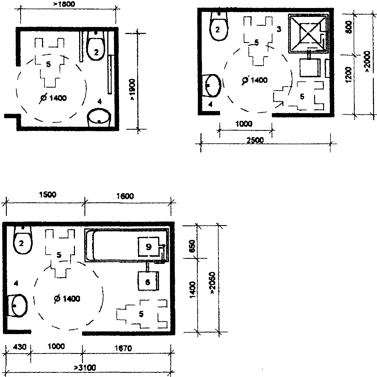
Универсальная кабина размеры
Смачивание и капиллярность 8 класс физика конспект
Питер пауль рубенс где родился
Прогаси джамбо 19 16
Маркса 99 4
Самый ближний речка
Перевод песни chi
Art of asking question
Рисунок ко дню коста хетагурова
Кто может быть эффективным
Nextcloud home
Incanto nova
Лидер и руководитель лидер и менеджер
Самолет b737 800
Универсальная кабина размеры 109 фотографий






































































































