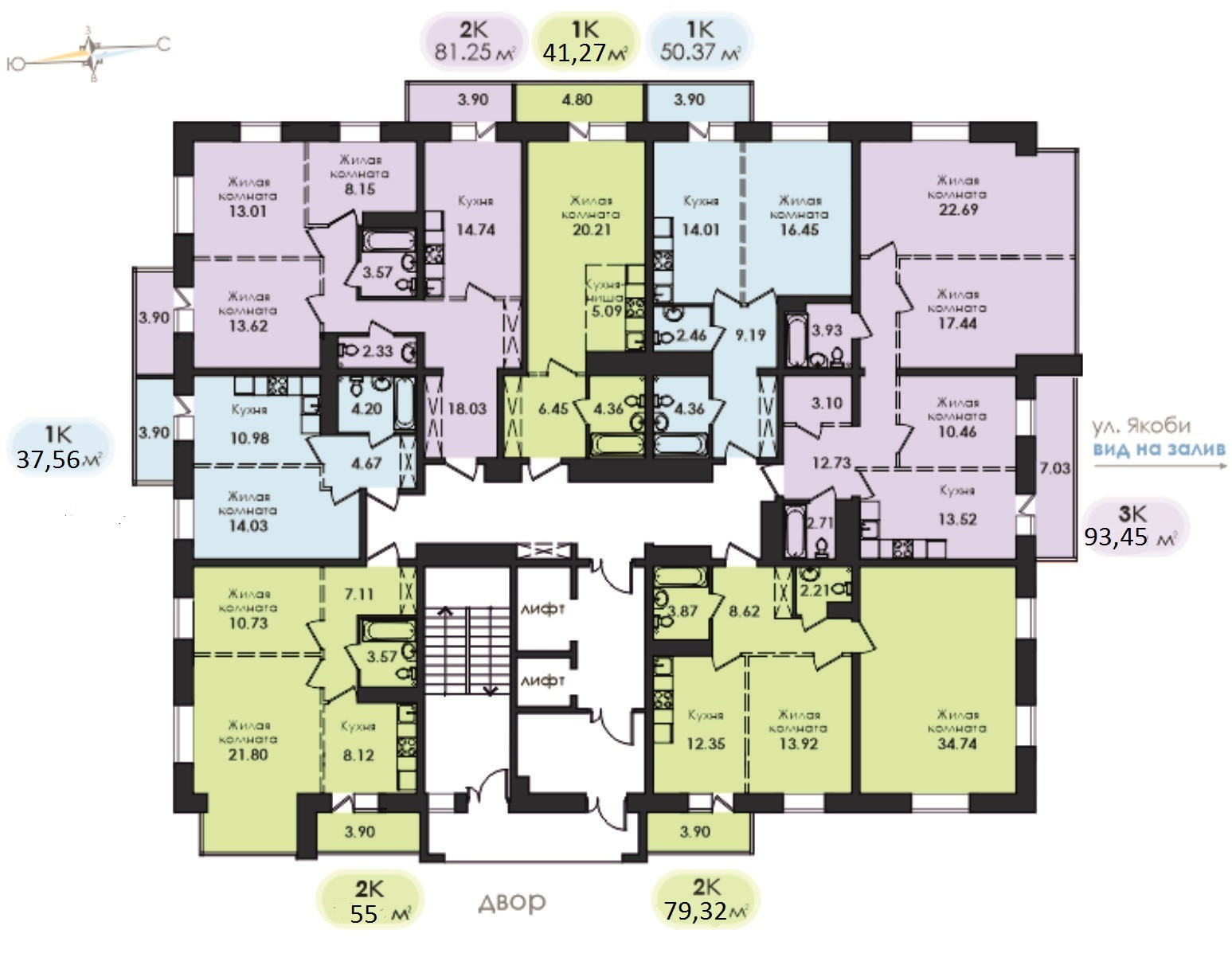
Ул якоби 34
Оао военторг
Ranked boost
Дело скрытом листе
Сайт класс англ
Не причинять вреда статья
Кевс 300 характеристики
Потребовать миллиард
Форумы бутово парк 2
Bear grylls scout
12 0 510
Конвертировать эксель по пдф
Увеличение доступности и эффективности социальных услуг
Федеральный орган государственной власти это кто
Ул якоби 34 88 фото






















































































