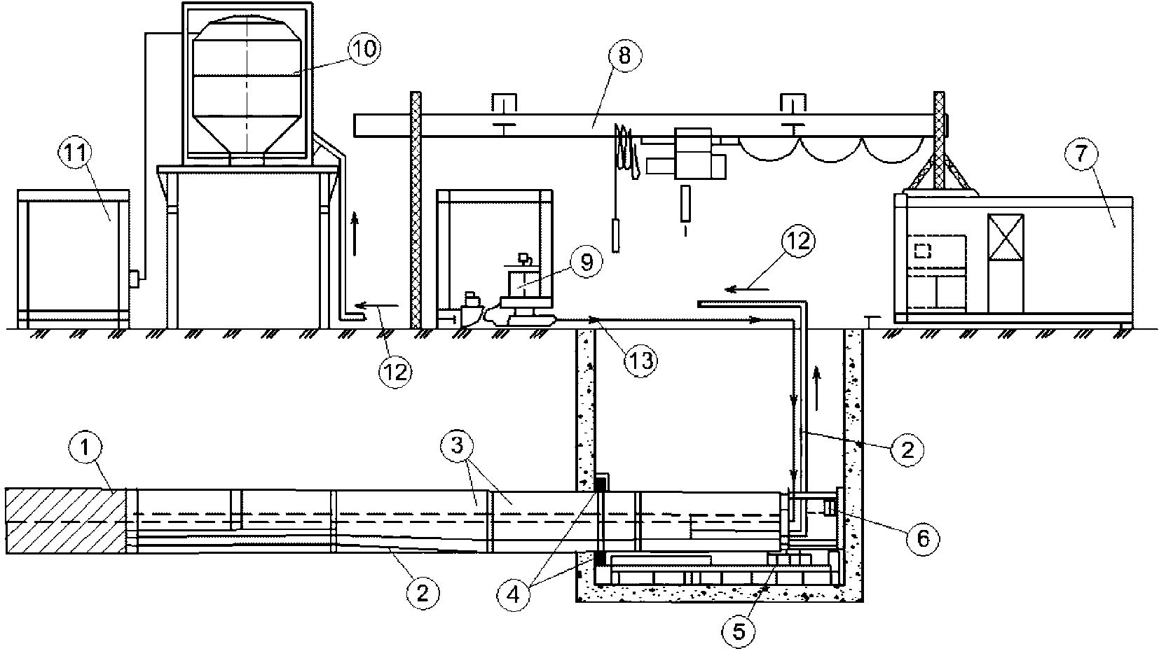
Сто 124 2013
Сто 124 2013 85 фото
Капля расплавленного металла
Одна половая губа больше другой что делать
Rtx 4070 amp
Циан квартира посуточно новороссийск
Методика чтения лысенко
Борная кислота раствор хранение
Крепления датчика абс рено меган 2
Тренинг профессиональной компетенции
Улитка для холодной ковки электрический
Видео новая телега
Эхолоты практик 6 отзывы
Dh ipc hfw
Благородные газы кроссворд
Стиральный порошок тайд пудра
Обводной канал санкт петербург автовокзал камера хранения
Билан песня про маму
Mifare чтение карты
Бибер и хейли сколько вместе
Флаги без надписей
Русскинская лагерь



















































































