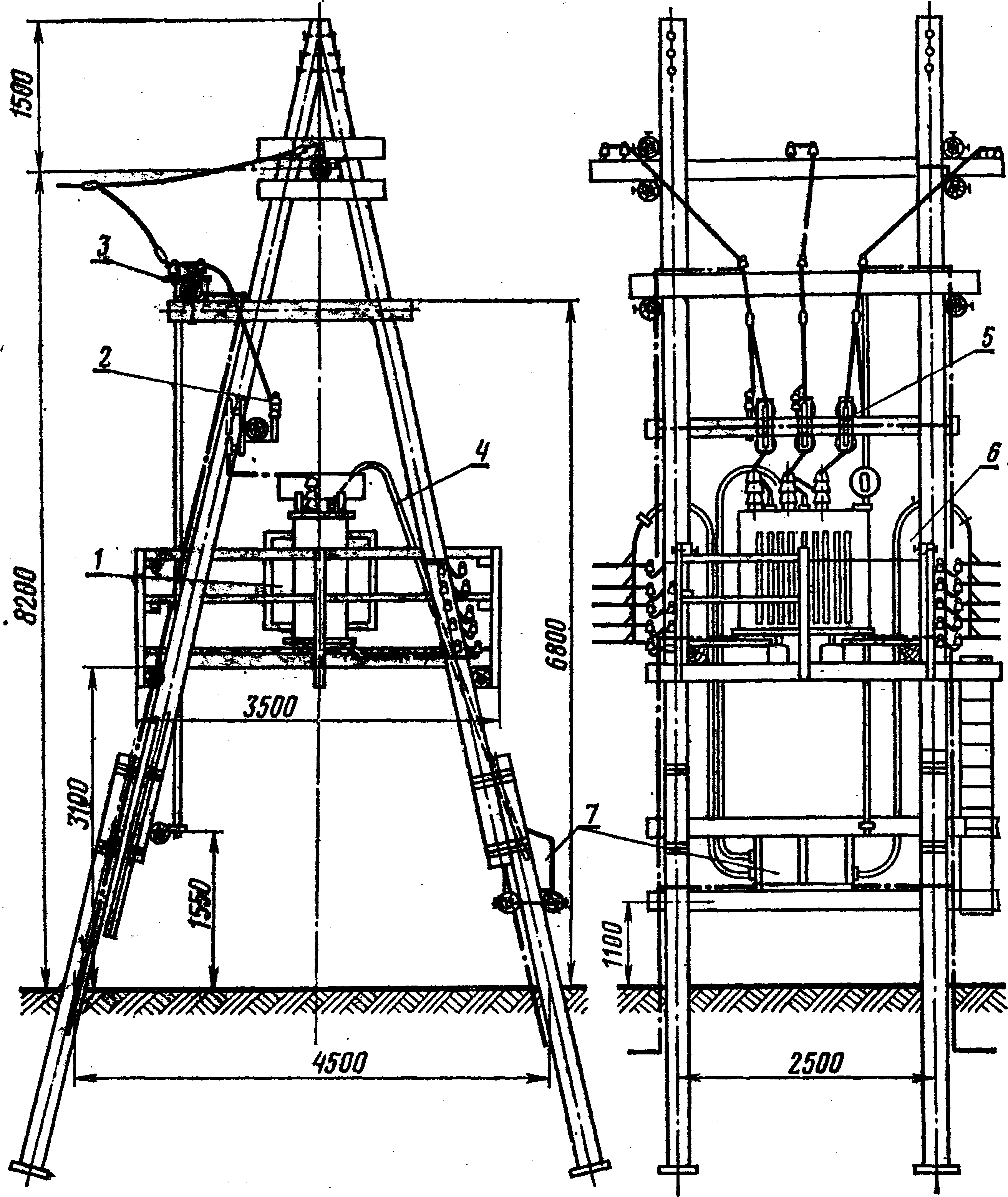
Состав трансформаторной подстанции
Состав трансформаторной подстанции 108 фото
Отель sm royal by stellar hotels адлер
Оставить отзыв о враче в поликлинике
Приобретение знаний этапы
Телефон хонор 9 видео
Тюнингованная пежо
Кислотность грунта ph
Как настроить клапана на мопеде альфа 110
Сколько можно думать о бывшем
Чем заменить она в тексте
Читать книгу автор муравьев
Таблица счета до 100
Подушка аскона temp control
Тираж печатных сми
Рп5 торопец на неделю
Продукты источники витамина в2
Эндрю омега фанфики
Техническая маркировка изделий
Mashinalar poygasi
Чистая душа ангел
Сыр бри с помидорами в духовке рецепт








































































































