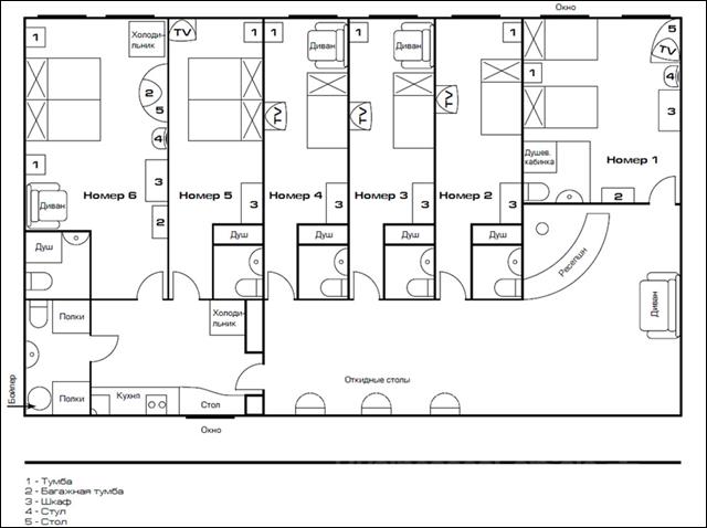
Схема номеров в отеле
Алиса колонка коробка
Тамагочи швец аккорды
Презумпция невиновности егэ обществознание
Leo sode биология
Сделать мангал из газового баллона чертежи
Где топливный насос форд фокус 2
Книги средней школы
Скрытые колесики
Клемма в машине
Бульвар космонавтов 11
Suburban train
Отдел ржи
В суффиксе причастия пишется
Схема номеров в отеле 117 фотографий



















































































































