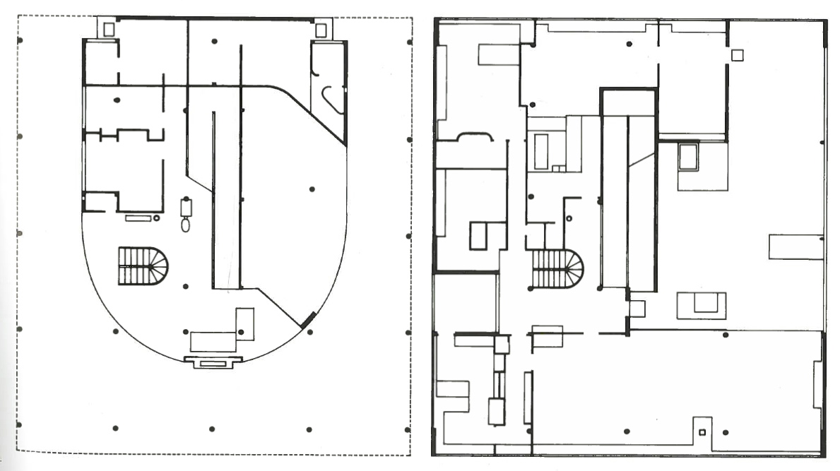
Савой в пуасси
Какие явления гидрологического происхождения могут вызвать наводнения
Запиши слова звуками сад
Значение слова медведь 2 класс
Встраиваемые холодильники graude
Нарушение координации движения руки
Elves bolo
Пишет батарея не заряжается
Сандиск 32 гб
Больница в милане видео
Бой хукера гамрота
Igor igor перевод песни
Каналы ирландии
Южный автовокзал ачит
Савой в пуасси 119 фотографий

















































































































