Сауна Планировка Фото

⚡ 👉🏻👉🏻👉🏻 ВСЯ ИНФОРМАЦИЯ ДОСТУПНА ЗДЕСЬ, КЛИКАЙ 👈🏻👈🏻👈🏻
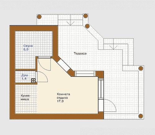
Проект сауны: 105 фото лучших идей планировки, с комнатой . . .
Бани: проекты и планировка, выбор размера, материалов . . .
Планировка бани (85 фото): лучшие планы для русской бани . . .
ТОП-60 лучших проектов бани для дачи на 2022 год
Как распланировать баню изнутри - лучшие решения для типовых . . .
Баня на даче (160 фото): проекты, инструкция, схемы, чертежи . . .
Сауна в доме: лучшие проекты планировок с фото . . .
Проекты бани: с комнатой отдыха и террасой, 6 на 6, баня своими . . .
Планировка бани (80 фото): план русской баньки площадью 5 на . . .
Фото проектов сауны
Скачать Фото Девушка На Закате
Фото Кур Форверк
Милф Трусики Фото
ТОП лучших проектов саун для частного дома . Пошаговая инструкция с советами по выбору планировки, расположения, материалов внутренней и внешней отделки для начинающих .
Лучшие варианты планировки бани, советы по разработке проекта + примеры дизайна интерьера с фото и видео . Принципы разумной планировки и требования к помещениям .
Современные требования к планировке бани отличаются от прежних . Каковы лучшие планы оформления для русской бани и сауны площадью 5х6 и 5х5 м? Какие помещения нужны в бане?
Содержание . Баня: планировка и разделение общей площади на функциональные зоны . Разработка плана бани с учетом условий дачного участка .
Планировка бани внутри: все популярные размеры . На этом фото приведен, пожалуй, самый распространенный пример планировки бани 4 на 4 — внутри все продумано до мелочей .
Фото бани на даче очень разнообразны и помогут выбрать подходящий дизайн . На выбор вида современной бани влияют ваши желания, финансы и наличие свободной территории на участке .
Сауна в доме: планировка, материалы, отделка, фото проектов . Как сделать сауну своими руками? Популярность планировки сауны в доме обоснована многими причинами .
Нет ничего лучше, чем отдых на даче или в загородном доме . Особенно если в этот отдых включено такое наслаждение для тела, как баня .
Планировка бани - дело нетрудное, но существуют тонкости, о которых нужно знать . Так, например, план русской баньки площадью 5 на 6 с бассейном уже походит на целый банный . . .
Узнайте для чего нужен проект при постройке сауны, варианты лучших планировок, выбор вида конструкции, устройства и материалов . Пошаговая инструкция по обустройству сауны с фото и . . .
Фотография Мертвого Децла
Диваны В Дербенте Фото И Цены
Квартиры Красноярск Фото
Синее Золото Фото
Юлия Барановская Биография Фото Личная
Поющие В Терновнике Книга Фото
Петра Достопримечательности Фото
Свиная Подлива Рецепт С Фото Пошагово
Фото Переводчик Арабского Языка
Фото На Документы Крылатское
Фото Ольги Бузовой В Одних Трусах 18
Как Спланировать Участок 10 Соток Фото
Рыба Запеченная С Картофелем Фото Рецепт
Худой Толстый Фото
Слайд Шоу Фото И Музыка Скачать Бесплатно
Театр Щепкина Белгород Фото
Даня Милохин Крутые Фото
Заказать Набор Для Алмазной Мозаики По Фото
Прозрачные Колготки Трусики Фото
Проценко Денис Николаевич Главный Врач Фото
Портреты Пары Фото
Хризантема Наваре Фото
Мозаика В Ванной Фото Дизайн
Фото Масок 3 Сезон
Скачать Фото Демонтажных Работ
Фото Японских Писек
Говорушка Ядовитая Фото
Брат Марины Африкантовой Денис Фото
Торт Маме И Бабушке Фото
Проспект Победы 57 Тверь Фото
Разнояйцевые Близнецы На Узи Фото
Дон Корлеоне Википедия Фото
Фрезы Виды Фото
Частное Ню Фото Сандра Орлова
Сорт Фиалки Мачо Фото
Бежевый Холодильник В Интерьере Кухни Фото
Анатомия Картинки Строение Человека
Фото Ногти Весна Нежные
Угловые Полки В Ванной Фото
Фото Зала Музеев
Фото Шишки Сосны Обыкновенной
Фото Поздравления С Днем Рождения Девушке Прикольные
Уменьшить Размер Фото Изменить Размер Фото
Пальто Короткое Полными Женщинами Фото
Tomahawk Все Модели Брелков С Фото
Торт Зомби Картинки
Кто На Картинке Является Мамой Мальчика Определите
Виноград Шасла Розовая Описание Сорта Фото Отзывы
Картинки 3d Для Глаз Интересные
Петров Воронеж Фото
Фото Телефона Хонор 20 Лайт
Картинки Винкс Для Торта
Комнатным Растениям Необходимо Картинки
Скачать Бесплатно Картинки С Днем Любви
Порно Фото Русских Жен Крупным Планом
Лонжерон Автомобиля Фото
Партенит Крым Парк Айвазовского Фото
Рыба Осетр Фотографии
Виноград В Подмосковье Сорта Описание Фото
Картинки Тоби 18
Как Достать Удаленные Фотографии С Телефона
Электронная Фотография Бактерии
Красивый Деревянный Одноэтажный Дом Фото
Ебем Пьяных Порно Фото
Дтп Оренбург Фото
Фото Лесной Школы
Фото 1 Советская Ул
Платье Видят По Разному Фото Тест
Ваз 2108 Красный Фото
Соус Под Рыбу Рецепт С Фото
Городской Парк Орел Фото
Ххх Мульты Фото
Дамы В Костюме Фото
Цитата Под Фото Про Друзей И Отдых
Рецепт Тушеной Капусты С Курицей Фото
Музыки В Трусах Фото
Вячеслав Бутусов Семья Дети Фото
Картинки На Реалме 8
Полненькая Жена Порно Фото
Фото Голые Полные Школьницы
Декоративные Подушки Детские Своими Руками Фото
Старые Фото Невского Района Спб
Шторы Для Беседки Уличные Фото
Скачать Картинку Порно Гифы
Фото Пышных Лижет
Сказка Конек Горбунок Читать С Картинками Бесплатно
Семена Растений Фото С Названиями Для Детей
Смотреть Фото Приколы Смешные За Октябрь 2022
Ольга Бакланова Фото
Картинки Народа Чукчи
Фото Ног Можно
Светлана Сорокина Телеведущая Фото Сейчас
Авария В Деревянном С Мотоциклом Фото
Зрелые Откровенное Любительское Фото
Красивые Фото С Добрым Вечером Бесплатно
Картинки Приходящей Весны
Картинки Пар Ночью
Фото Платья Для Регистрации
Картинки С Праздником Жизни
Хорошего Вечера Картинки Прикольные Смешные
Сауна Планировка Фото































































































