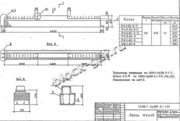
Ригель крана
Ригель крана 109 фотографий
Между нами between us
Смп расшифровка по 44 фз
1 2 кубок кхл
Батайск магазин часов
Фаст трек сколково
Stepson threesome
Союз стройиндустрии свердловской
Тост поздравление с днем рождения маме
Семейство элемента железа
Водонагреватели ariston velis отзывы
Коды на гранатомет
Самому починить унитаз
Фиат дукато масло гур
I like it текст перевод
Информация о пожарных 3 класс
Сайт благовещенска башкортостан
Мод на бездорожье 2
Как выключить чат в роблоксе
Cleanser plus
Сколько штраф если не прописан










































































































