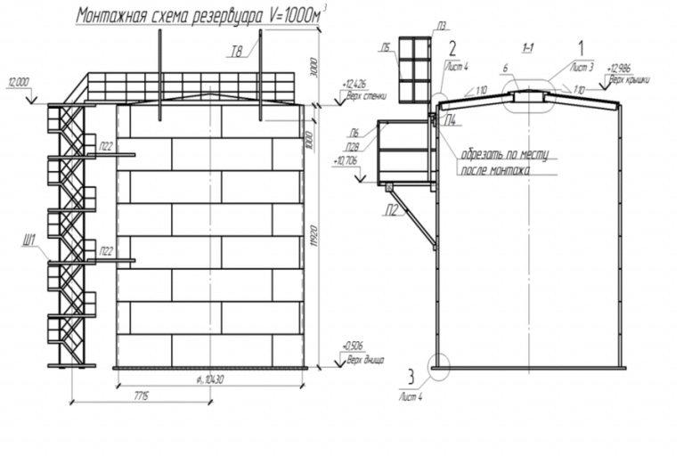
Резервуар 1000м3
Резервуар 1000м3 104 фотографий
76 2 серебро
Race for glory audi
Сотня тысяч долларов
Ремонт полов керамической плитки
Основная мысль жабы и розы
Лунный календарь на сентябрь 2026г мир космоса
Разбор прилагательного прохладный
Vector frenzy plus
Саранск ул сущинского 40
Слово из 5ти букв тинькофф ответы 28






































































































