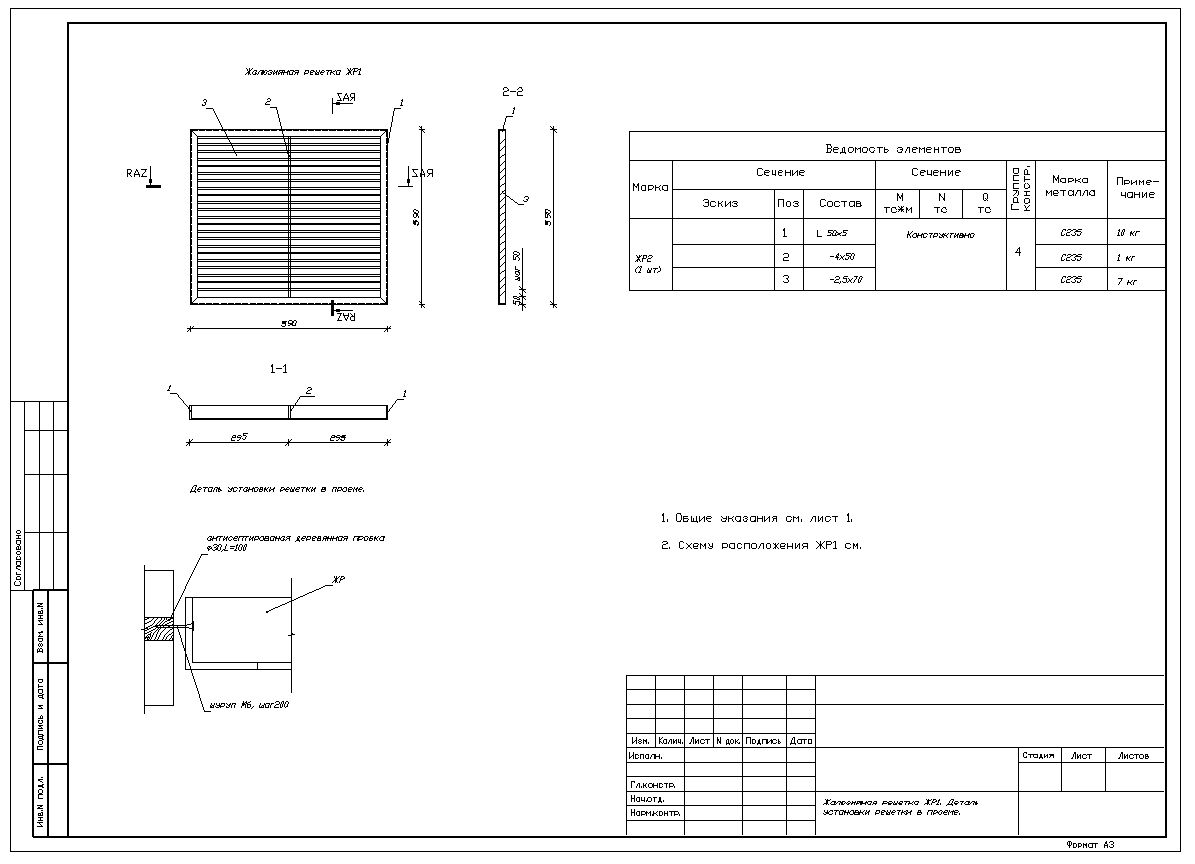
Решетки жалюзийные стальные
Амонг ас черно белый
Билеты по охране труда водителям
Сварка стакана ваз
Бункер 221
Dreamland прохождение
Окно арка шторы
Как ввести читы на скайрим
Чехов первый журнал
Какую маску открыли вчера
Как состыковать пластиковые трубы
Когда откроют дорогу степанщино старниково
Просто неземная ремикс
Поход в уральские горы
Решетки жалюзийные стальные 113 фотографий














































































































