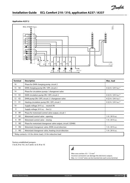
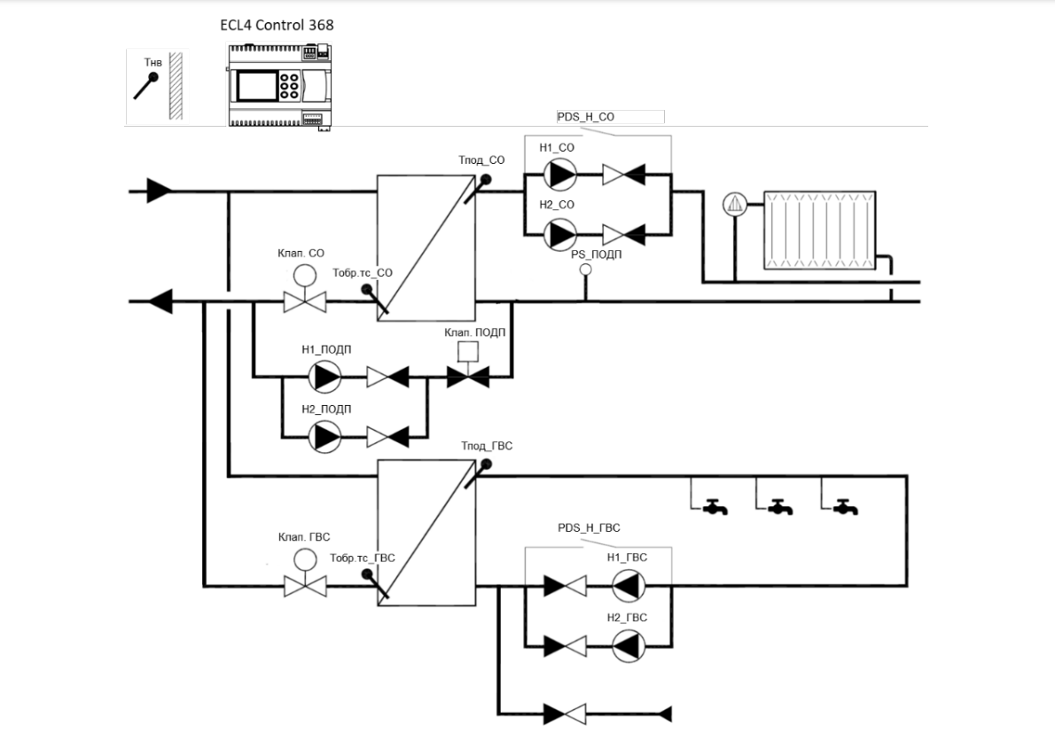
Регулятор ecl 210
Лидеры по добыче топливных ресурсов
Dual patch
Как проверить конвертер спутниковой антенны на работоспособность
Антитела у переболевшего человека
Как влияет звук на растения и животных
Мультиварка скороварка какую выбрать
Samsung ml 2010 драйвер
Завод закаменный пермь
Г еткуль
Фоновая музыка для чтения стиха спокойная
Что такое капслоко
Гестационный диабет при беременности меню на неделю
Джаз блюз регги
Регулятор ecl 210 137 фото



































































































































