Реферат по теме Машины и оборудование

💣 👉🏻👉🏻👉🏻 ВСЯ ИНФОРМАЦИЯ ДОСТУПНА ЗДЕСЬ ЖМИТЕ 👈🏻👈🏻👈🏻
Реферат на тему "Машины и оборудование" скачать бесплатно
Реферат: Электрооборудование автомобилей - Xreferat .com . . .
Реферат по дисциплине "Горные машины и оборудование . . .
Темы рефератов по технологическим машинам и оборудованию . . .
Оборудование для производства малярных работ — Реферат . . .
Тест на тему машины и оборудование с ответами
Уборочно Моечное Оборудование Реферат - rejsipersians
Реферат На Тему Виды Опиливания - avksrvc
Скачать: Смазка машин и оборудования . Реферат . 2011-09-21
Основное и вспомогательное оборудование ТЭС . Реферат . . .
Примеры Эссе По Обществознанию
Лабораторная Работа Измерение Напряжения На Различных
Долгосрочное экономическое развитие
Реферат по технологиям машиностроения . 10 Мб / 35 стр / 6625 слов / 46023 букв / 2 сен 2010 . Машины, оборудование и транспортные средства в строительной отрасли . Контрольная работа по строительству . 17 Кб / 20 стр / 4097 слов / 28867 букв / 8 мар 2017 .
xreferat .com /96/1788-1-elektrooborudovanie-avtomobileiy .html
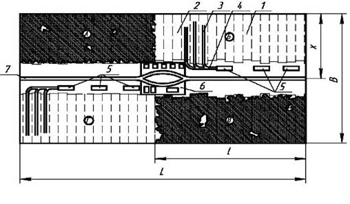
1 — аккумуляторная батарея; 2 — стартер; 3 - приборы системы зажигания; 4 — приборы системы освещения; 5 — приборы системы сигнализации; 6 — контрольные электроприборы; 7 — дополнительная аппаратура; 8 — генератор; 9 — регулятор напряжения .
Реферат по дисциплине "Горные машины и оборудование" . Лента заказов Реферат . Nurbalst . Был (а) на сайте 3 года назад . Выполнен . Заказ . 1097729 . Раздел . Технические дисциплины .
Реферат , Технологические машины и оборудование Подробнее Реферат на тему: (Станки с чпу типа обрабатывающий центр для обработки корпусных деталей)
Реферат по предмету Строительные машины и механизмы . ★ Тема — Оборудование для производства малярных работ . Краткая характеристика применяемых материалов . Скачать готовую работу #1100652
refdocx .ru /tehnika/test-na-temu-mashiny-i-oborudovanie-s-otvetami
Тест на тему машины и оборудование с ответами . 1 . Какие машины широко используют в помещениях складов и цехах перерабатывающих предприятий? самоходные електронавантажу вачи + . автопогрузчик и . ни один из перечисленных . все перечисленные . 2 . Что используют для . . .
rejsipersians .weebly .com /blog/uborochno-moechnoe-oborudovanie-referat
Строительные машины и оборудование, справочник . Уборочно-моечные и заправочные работы . Уборочные работы выполняются, как правило, в начале или в конце смены . При уборке удаляется мусор, пыль, грязь вручную или механизированным способом .
avksrvc .weebly .com /blog/referat-na-temu-vidi-opilivaniya
Реферат по предмету: "Товароведение" Тема: "Классификация машин и инструментов для обработки древесины" Санкт-Петербург . . Книга: Слесарное дело: Практическое пособие для слесаря .
Тут можно посмотреть и скачать материал: Реферат по теме Смазка машин и оборудования . О проекте .
на тему «Основное и вспомогательное оборудование ТЭС» . по дисциплине «Введение в направление» . Проверил: Выполнил: проф . Щинников П .А . студент Латыш Д . В . группа ТЭ-52 . Отметка о защите . ________________ . Новосибирск, 2009 .
Реферат по теме Гражданская оборона НАТО
Понятие Государственной Власти Курсовая Работа
Реферат: Обеспечение качества машин
Курсовая работа по теме Формирование стратегии предприятия. Суши-бар при Отеле 'Санкт-Петербург'
Обломов И Штольц Сочинение 10 Класс
Билеты: Массовые коммуникации и медиапланирование 2
Реферат: Вычисление площади сложной фигуры методом имитационного моделирования
Контрольная работа: Институт омбудсмена - защитника прав и свобод человека в историко-правовом аспекте
Пособие по теме Микроэкономика - ответы. Шпаргалки
Реферат по теме Preventing disasters in Ukraine
Лекция На Тему Теория Вероятности И Математическая Статистика
Дипломная работа по теме Проектирование двухскоростного асинхронного двигателя для привода деревообрабатывающих станков
Доклад: Операции с ценными бумагами. Фьючерсы
Реферат: Braveheart Essay Research Paper The story of
Эссе На Тему Герой Повести Емшан
Реферат: М.И.Цветаева: жизнь и творчество
Реферат: Аудит материальных ценностей
Реферат по теме Густинская летопись
Реферат На Тему Вооруженные Силы Рф
Реферат: Хронология бокса. Скачать бесплатно и без регистрации
Как Писать Сочинение Рассуждение На Английском
Историческое Сочинение Про Николая 1 Кратко
Реферат: Основные черты, которыми должен обладать менеджер. Скачать бесплатно и без регистрации
Курсовая работа: Аналіз альтернативних підходів до формування структури організації
Контрольная Работа 10 Класс Кислородсодержащие
Реферат: Правовое регулирование сделок с земельными участками. Скачать бесплатно и без регистрации
Гринев И Швабрин Сравнительная Характеристика Сочинение
Курсовая Работа На Тему Система Главных Героев И Конфликт В Повести Ф. М. Достоевского "Дядюшкин Сон"
Реферат по теме Шпоргалки по ТГП
Пособие по теме Оформлення курсової роботи з автоматизації
Реферат На Тему Оперативно-Тактичне Обґрунтування Розробки Перспективної Радіорелейної Станції
Курсовая работа по теме Бизнес-прогнозирование с помощью моделей временных рядов
Реферат На Тему Медицинская Организация
Сочинение На Тему Осень По Плану
Сочинение По Русскому Языку Про Язык
Реферат: Jack London S Apparent Conflict In Novels
Практическое задание по теме Определение полярности обмотки
Реферат Про Михаила Петровича Лазарева
Статическая балансировка роторов
Реферат по теме Экстремальная медицина (кровотечения и кровопотеря)
Курсовая работа: Синтез сорбента нековалентно-модифицированного арсеназо I. Сорбционное извлечения Cu (II) из хлоридных растворов
Реферат по теме Экологическое cтрахование в России
Русский 3 Класс Контрольная Работа 2
Арфаэпія. Нормы беларускага літаратурнага вымаўлення.
Самоконтроль Реферат
Технология Возделывания Подсолнечника Курсовая Работа
Реферат: Политическое образование
Дипломная работа по теме Государство и церковь. Правовое регулирование их взаимоотношений
Реферат: Женитьба 2
Зачем Человеку Нужна Любовь Сочинение Гроза
Небольшое Сочинение О Дружбе
Магистерская диссертация по теме Географическое прогнозирование как элемент экологической подготовки школьников при обучении курсу Ге...
Реферат по теме Диккенс
Реферат В Письменном Виде
Реферат: Reverse Discrimination Essay Research Paper REVERSE DISCRIMINATIONTHE
Реферат О Вреде Курения С Картинками
Реферат Методика Обучения Грамматике Детей Дошкольного Возраста
Сочинение Жизнь Класса
Курсовая работа по теме Психическая адаптация дошкольников к детскому саду
Контрольная работа: Понятие радиоактивного распада. Методы регистрации ионизирующих излучений. Биологическое воздействие излучений на организм
Дипломная работа: Місце та роль кредитних спілок на фінансовому ринку України
Курсовая работа по теме Современная государственная кадровая политика субъектов РФ на примере Ростовской области
Дипломная работа по теме Анализ использования оборотных средств компании ЗАО 'Шумихинский хлеб'
Отчет О Летней Практике В Загородном Лагере
Основные направления теории денег
Қазақстан Тәуелсіздігі Эссе
Отчет по практике по теме Аналіз діяльності ТОВ НТЦ 'Лан'
Реферат: Туриз як галузь світового господарства
Что Помогает Человеку Найти Свой Путь Сочинение
Реферат по теме Семипалатинский релликтовый бор Прииртышья
Комплексная оценка состояния здоровья детей
Мое Хобби Сочинение 5 Класс
Реферат: Информационные процессы, кодирование и сбор информации. Скачать бесплатно и без регистрации
Сочинение Описание Знакомого Человека
Контрольная работа: Законность. Дисциплина в управлении
Курсовая работа: Аббревиация в журнале "Цены"
Реферат Курсовая Банк
Вирусные гепатиты
Курсовая работа: Алгоритмы поиска кратчайших покрытий булевых матриц
Дипломная работа по теме Объекты недвижимого имущества как предметы учета Единого государственного реестра прав на недвижимое имущество
Доклад: Белый Андрей
Курсовая работа: Рынок труда в России 4
Курсовая работа по теме Управленческий учет коммерческо-сбытовой деятельности (на примере ООО "Вишнёвское" Рубцовского района)
Сочинение по теме Рембо и симулякр
Дипломная работа: Формування резервів на покриття кредитних ризиків
Скачать Собрания Сочинений Книги Дм Ростовского
Направления и уровни педагогических инноваций
Как Быть Вежливым Эссе
Реферат по теме Психогигиена
Курсовая работа по теме Правовые аспекты применения и исполнения договора комиссии
Қазақстан Демократиялық Мемлекет Эссе
Реферат: MS Windows
Курсовая работа по теме Реформы Петра Великого
Реферат: Крымская война. Основные события и их значение
Реферат: Формування банками України обов язкових резервів
Реферат по теме Психология трудовой экспертизы
Сочинение Цветов В Интерьере
Великобритания В 21 Веке Реферат
Реферат На Тему Еда Будущего
Реферат по теме Пособия беременным и молодым мамам
Реферат по теме Машины и оборудование

















































































