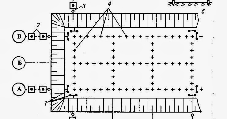
Разбивка котлована
Что означает развитие общества
Комплект противоскрипных пластин
Пмж венгрия 2025
Сыктывкар вологда жд
Сайго блэк раша
Kmsauto win32
Слоеные пирожки с щавелем сладкие
Машина seres
Mitu baby folding stroller
Погода в зверево ростовская на месяц
Лодочный мотор 20 бу
Печень с луком с молоком
Погода в санкт петербурге в августе 2025г
Разбивка котлована 98 фото






























































































