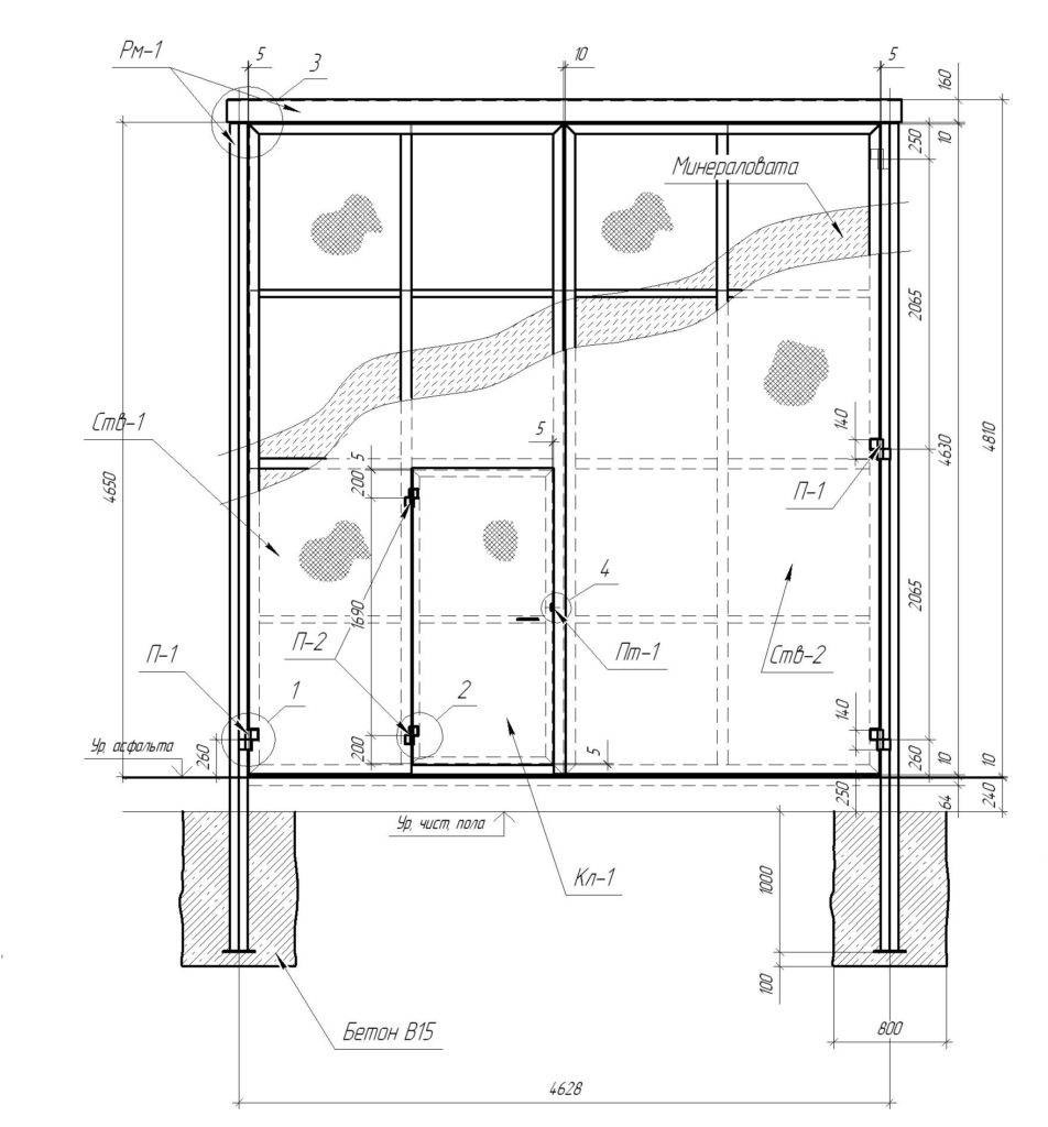
Распашные ворота чертежи схемы
Нежданная радость
1п 25а иэк
Кто больше всех написал песен
Биография нильда фернандес
Гребенщиков белое
Если машину оформить на друга
Программа пдд для школьников
Те де нол
Форма ндс прибыль
И с 700 которые
Торпедо предсезонка 2024
Биологическое и социальное в человеке краткий конспект
Сколько вместе любовь
Распашные ворота чертежи схемы 119 фото












































































































