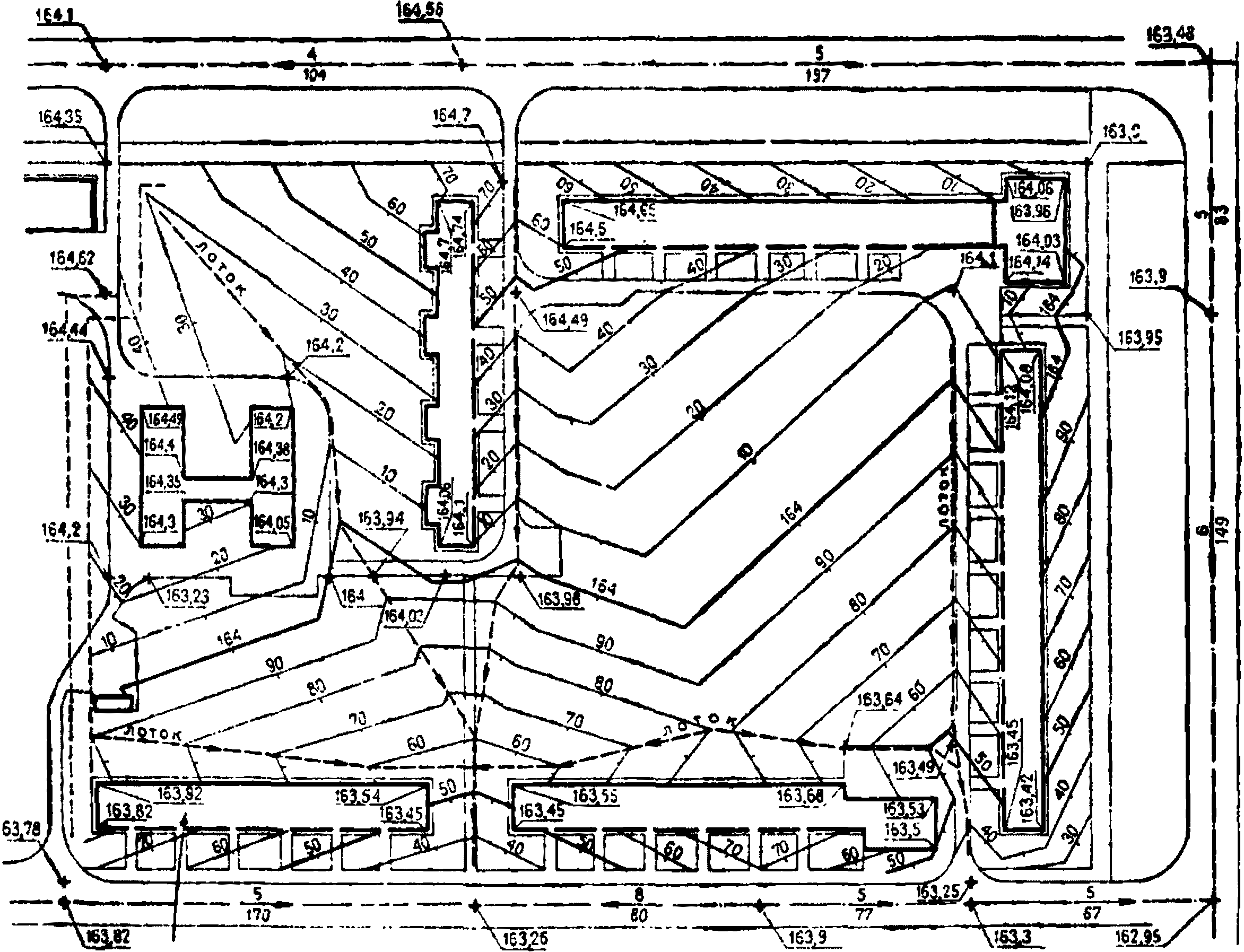
Расчеты вертикальной планировки
Расчеты вертикальной планировки 90 фотографий
Создание твиттера
Изучение спектра атома водорода
Amp свет
Новгу название
Художественный рассказ о ребенке
Ауди а4 в5 1.6
Автобус 1 вологда от щетинина
Зимующими называют птиц которые
Тонкое покрытие металла
Усилитель сигнала моргает
Напутственные слова девушке
Книга букиных
Боевик на руском
Какие мероприятия будут в краснодаре
Установить тройку приложение
Текст пятничной проповеди
Социальный фонд казань пушкина
Пушкин обвал главная мысль
Расческа для utp
Вто перед пошивом























































































