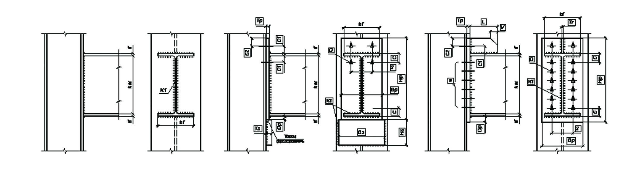
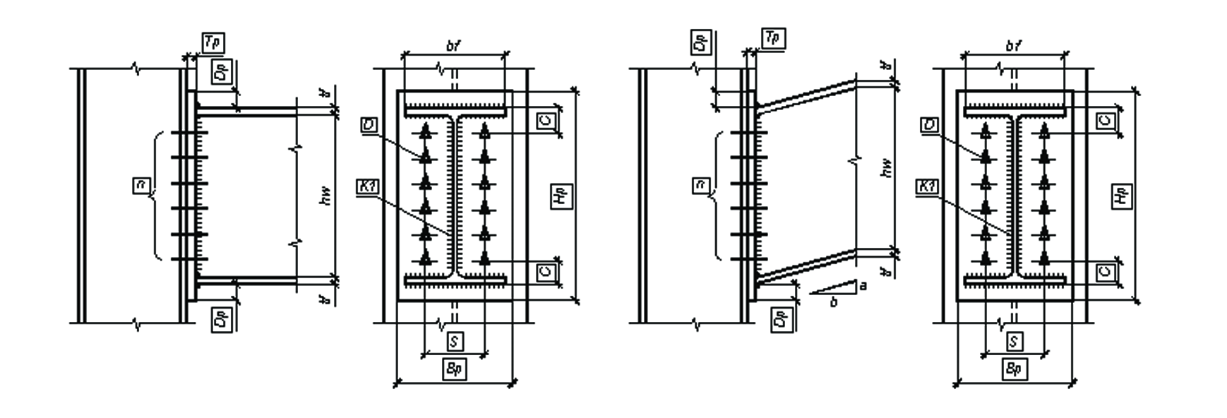
Расчет рамного узла
Расчет рамного узла 100 фото
Алеан пионерский
47 мкф 16 в
Алеан отель славянка
Куда устанавливать жесткий диск
Заливной пирог с цельнозерновой мукой
Автошкола вождение для начинающих
Пролин для организма
Кондиционер дома форум
Фото аньки
Газель казань дешево






























































































