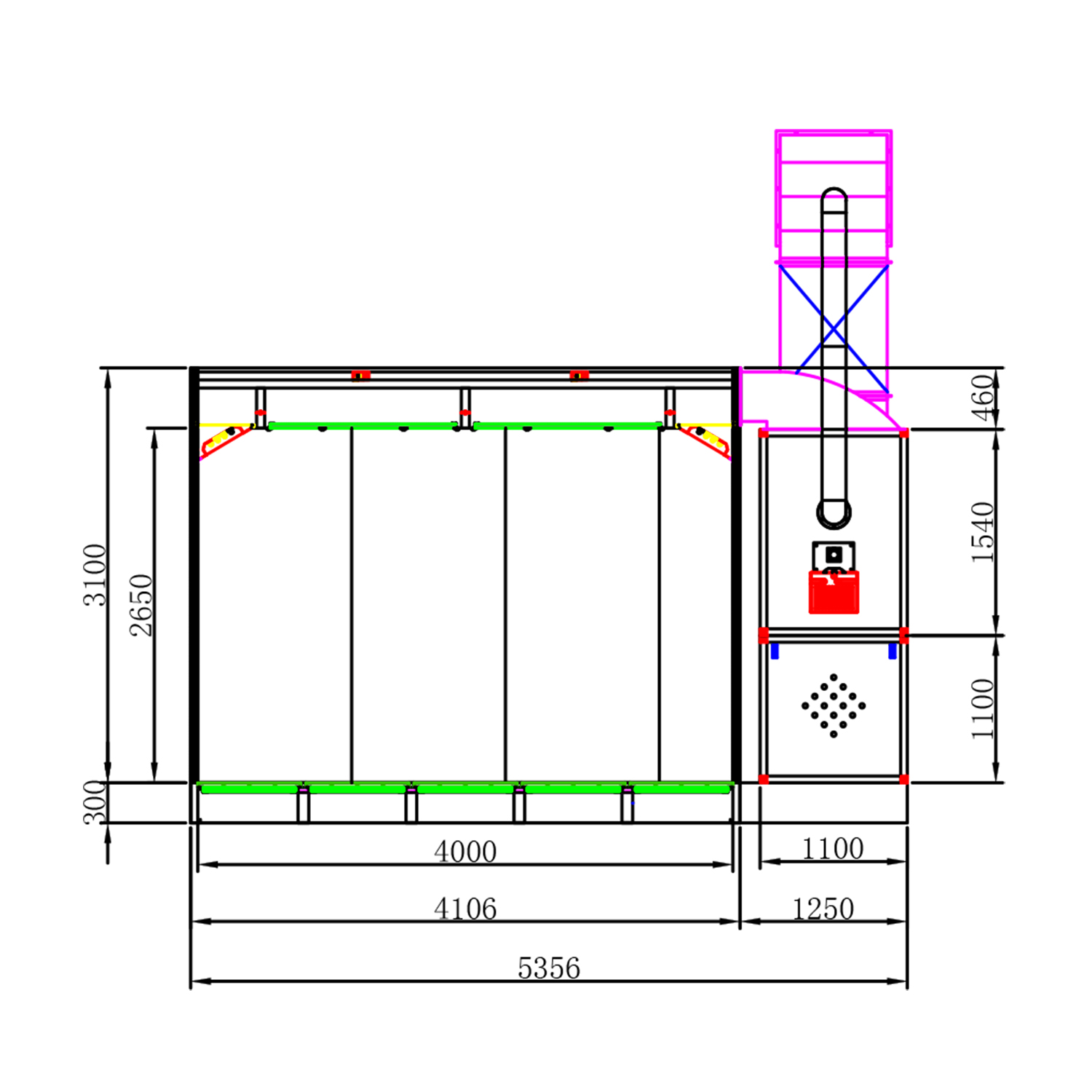
Расчет покрасочных камер
Расчет покрасочных камер 115 фотографий
Помидоры на зиму горькие
Приказ 60 от 2017
Декларация нвос приказ
Защита проекта 9 класс тема баскетбол
Петля блюм 180 градусов
Термальный источник кучугуры темрюкский
Двери тула адреса
Окна тула под ключ
Пульмонологическое отделение нижний новгород
Водонагреватель zanussi zwh s 80 splendore











































































































