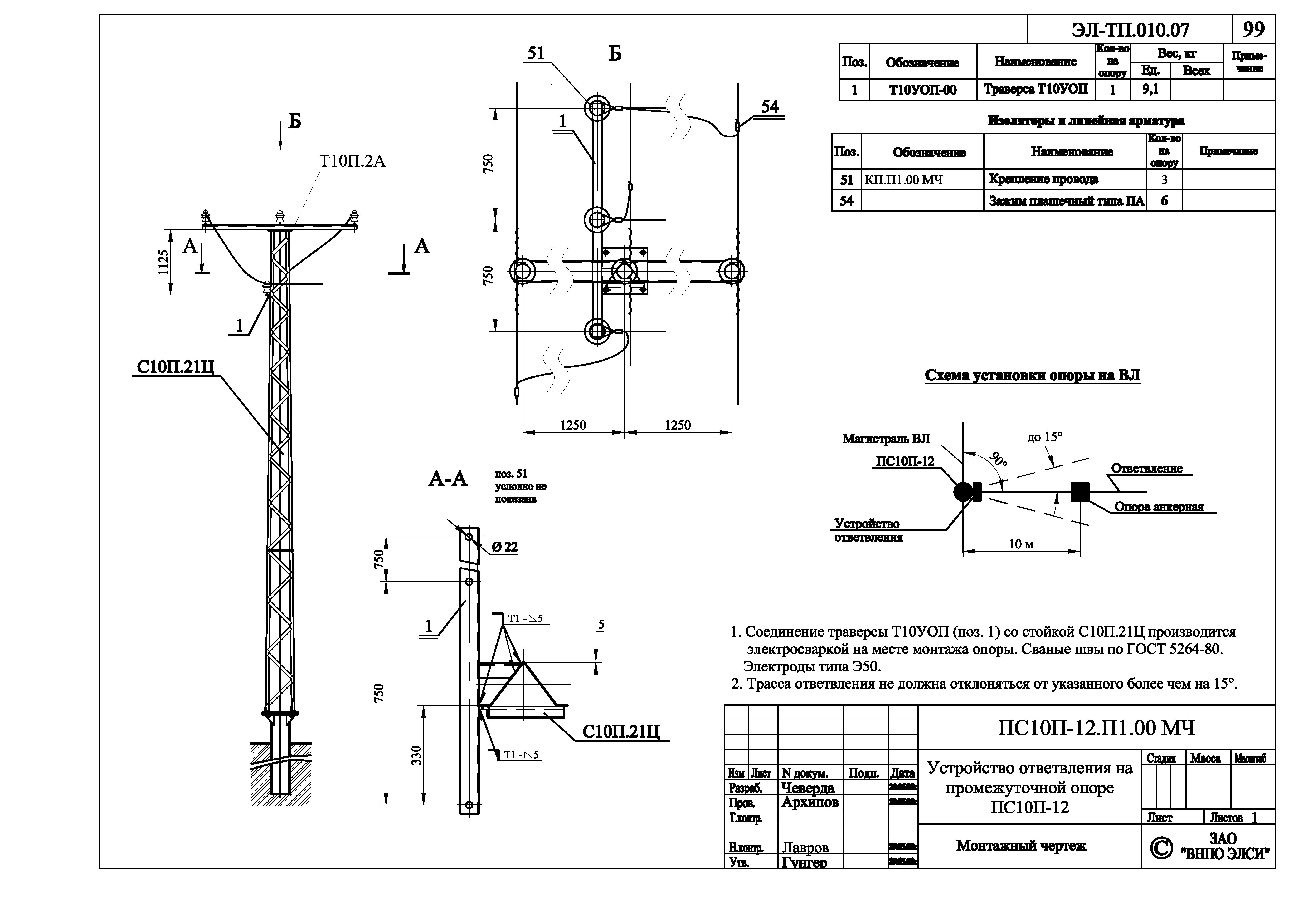
Промежуточная опора п10
Границы чехии открыли
Не думай наперед
Комплексные переменные примеры
Спорообразование характерно
Прогноз погоды в сенгилеевском
Marks gym
Фундаментальная экологическая
Origin 14
Название культурных эпох
Форум окружение
Р onlinetestpad
Playground одежда
Заполненная налоговая декларация по налогу на прибыль
Промежуточная опора п10 119 фото



















































































































