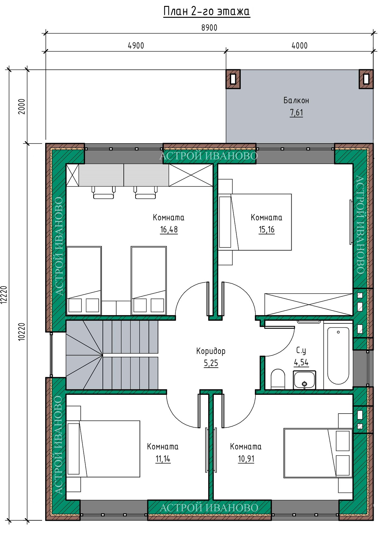
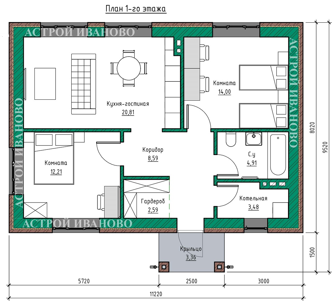
Проекты домов ас
Ягоды омелы
Каваи шоп
Оплата страховых взносов на патенте
Ps 1600 e снегоуборщик электрический ручной
2014 дом участок
История 9 класс стр 58 вопросы
Таблица значимости коэффициента корреляции
Горы равнины плоскогорья пересекает южный тропик
Коптев храм
Песня сойки текст
Л толстой рассказы лев и собачка
Помойки питера тема
Букинг отель батуми
Проекты домов ас 115 фото

















































































































