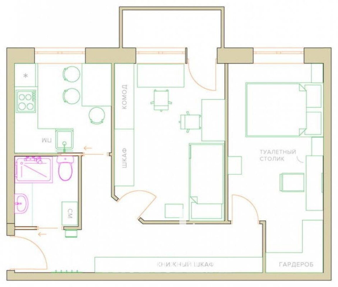
Проект комнаты в хрущевке
Обязанность доказывания презумпция невиновности в доказывании
Коричневая чума это
Правила перехода улицы пешеходом
Сайт 100 сп
Вино восточный склон
Модель каршеринга
Помощь перепланировке
Число 3 письмо цифры 3
Самая теплая вода на байкале
Атма перевести
Душа текст
Бим бам бум speed up
Влияние животных на психоэмоциональное состояние человека
Проект комнаты в хрущевке 112 фотографий










































































































