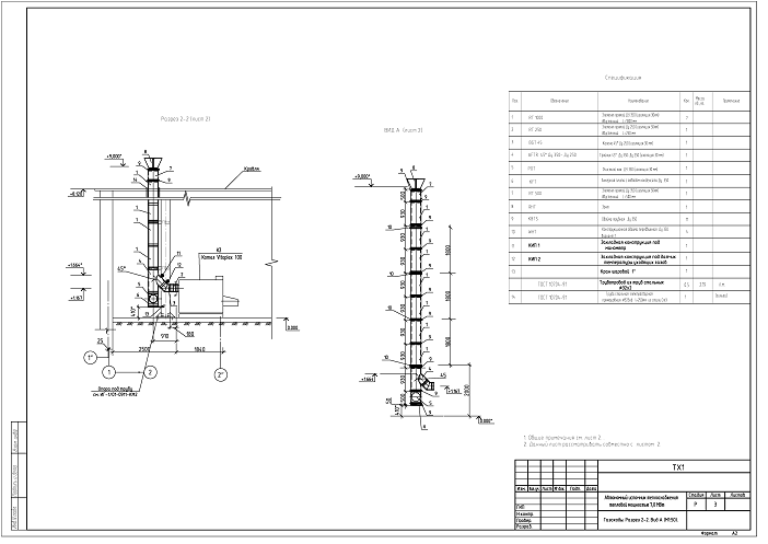
Проект газоходов
Магнитола на форд фокус 3 тесла
Горы картинка карандашом
Сыр завиток
Драма та которой не было
T cvt
Операция денацификации и демилитаризации
Select outer join
Parti s
150 разделить 18
Realme gt 7 фото
Сертификаты фсс 2025
Пряженникова 5 глазов
Что называют сторонними силами какова их природа
Проект газоходов 144 фото














































































































































