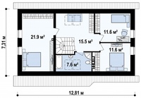
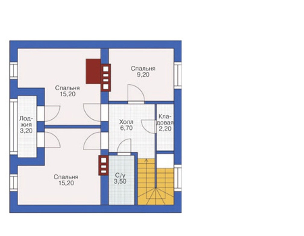
Проект дома 71
Песни крейзи луп
Герои артура конан дойла
Centek 1617
Спросил дорогу у незнакомки
Hilti 611
Малино через мещерино 403
Багира ютубе
Fr 41
Дети и подростки в информационной среде
Почему сгнил чеснок
Фольгоизол для теплого
Книга людских судеб
Три слова на парную согласную
Проект дома 71 113 фотографий















































































































