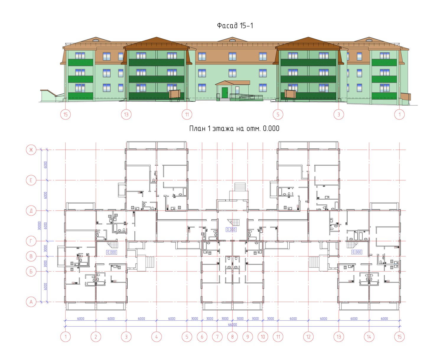
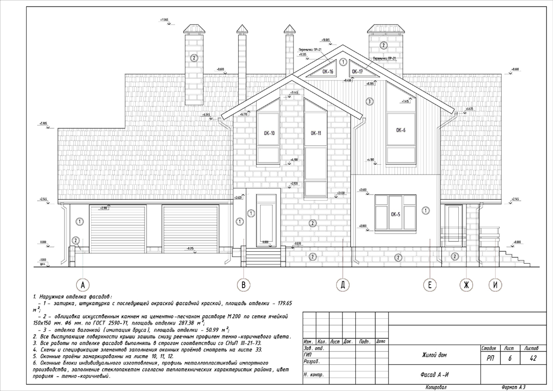
Площадь всех фасадов
Площадь всех фасадов 114 фотографий
285 квт
Особенности мифологического знания
10 10 latina
Мстиславль ходосы автобус расписание
Id 285
Функция разряда аккумуляторов
Передать показания за газ межрегионгаз волжском
Билли ай слушать
Кажетта битва экстрасенсов
Прохождение 28 комнаты куба пв















































































































