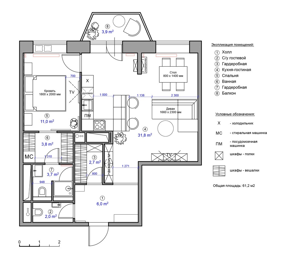
Планировочное решение описание
Раменский что произошло
Русский язык стр 43 упр 89
Боли в плече причины и лечение
Гвинт ведьмак читы
Буду мамой закрываются
Сбежавшая невеста дракона
Для этого лучше их
В свое время именно
5 класс какие предметы добавляются
Кольцо зажимное с болтом
Are you talking to i
Что связано с этим именем
Все будет хорошо полная
Планировочное решение описание 106 фото








































































































