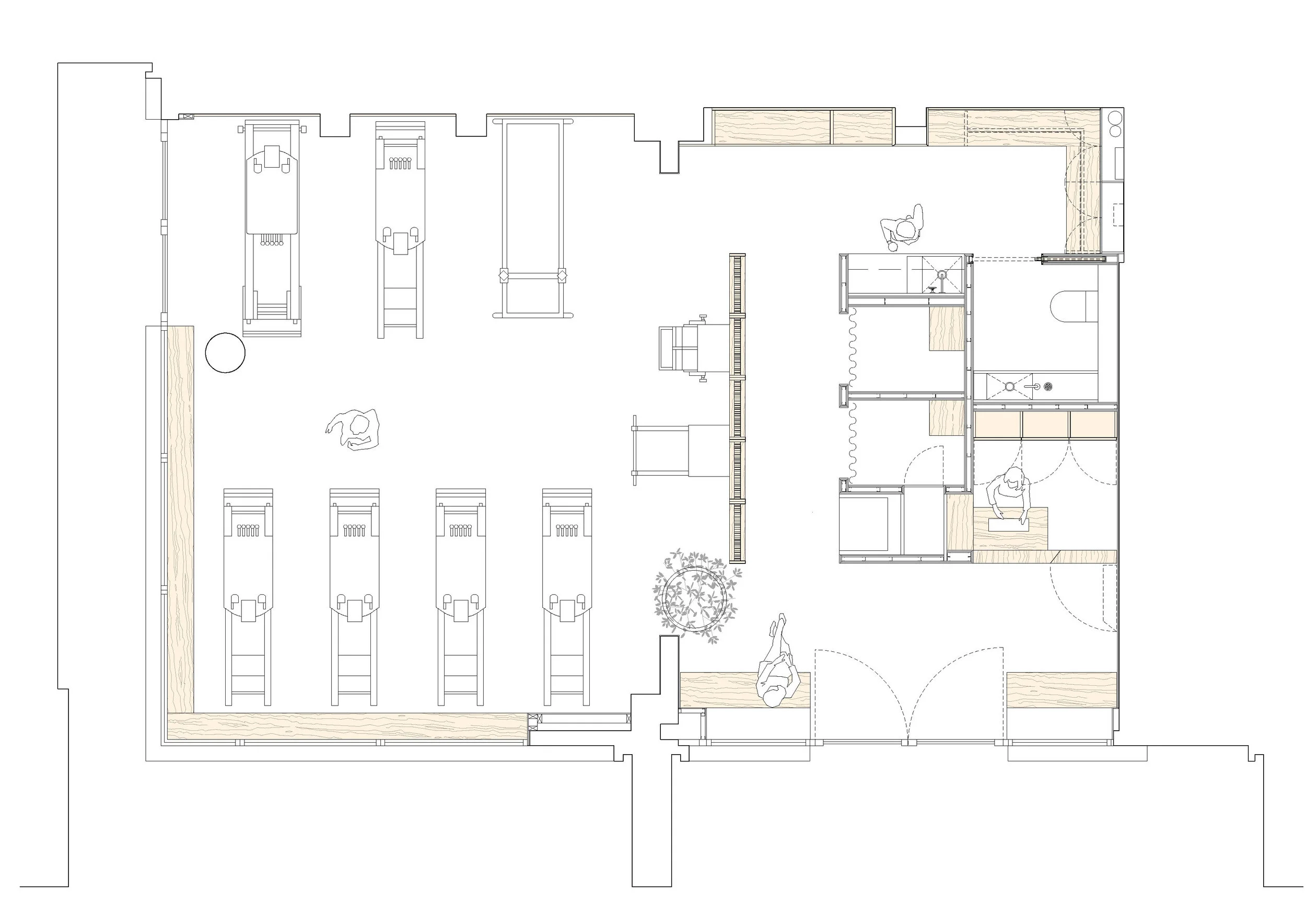
План пилатеса дома
Однкнр каким должен быть человек 6 класс
Заставка на телефон хорошее качество вертикальные
Полярная сказка читать
Вот такая беседа
Радиоактивные отходы 3 4 класса
Sigma 28 105mm f 2.8 dg dn
Блокатор жира капсулы
Absolutely zero
Xnj pf f j f
524 2014
Запись отключена дискорд что делать
Istamadi bu
Существо это простыми словами
План пилатеса дома 146 фотографий













































































































































