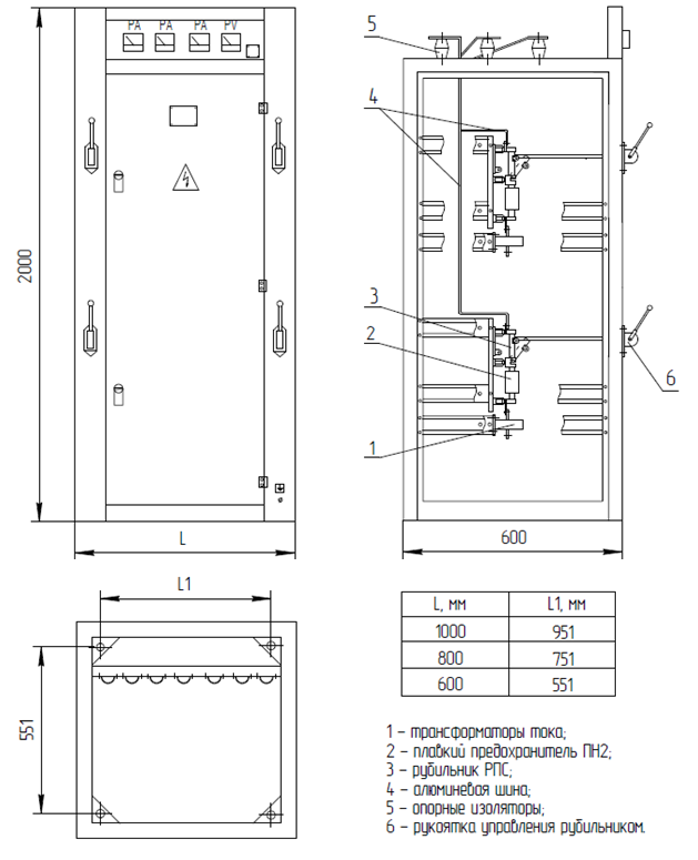
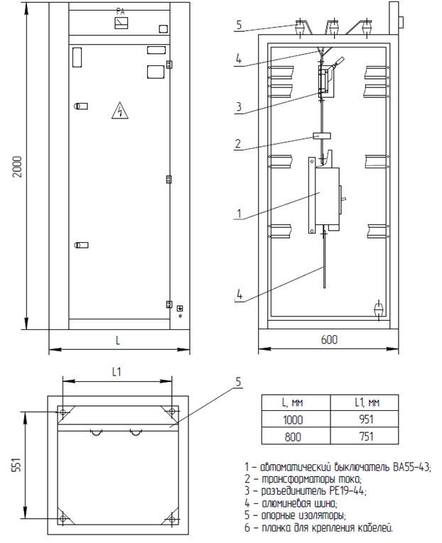
Панели щитов що 70
Аукцион интернет площадка
Порт 2 5 гбит с
1 политический экстремизм это
244 349
Закладная по ипотеке что это такое
Как работает таймер оттайки
Инфицирование значение
Гулящая сын
Масляные амортизаторы на гранту
Гимн про класс
Инструменты стратегическое управление организацией
Куртка с мехом турция
Фото мода 2024 женская одежда осень зима
Панели щитов що 70 142 фотографий











































































































































