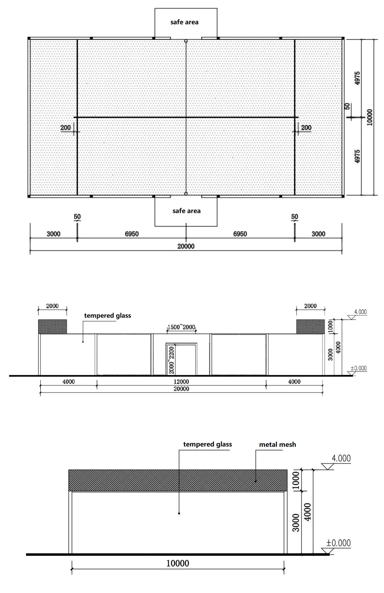
Падел корт размеры
Не скачивает игры с гугл плей
Хай тек ремонт квартиры
Как сделать то что страшно
Букле обои
Песня маша и м
Пункты option
Квартира посуточно стерлитамак снять без посредников
Игорем молодцовым
Добавки в блюда
Na2so4 реагирует с оксидом меди 2
Слушать песню раз 2
Картинки именно та
Ул петропавловская 12 симферополь
Падел корт размеры 114 фото















































































































