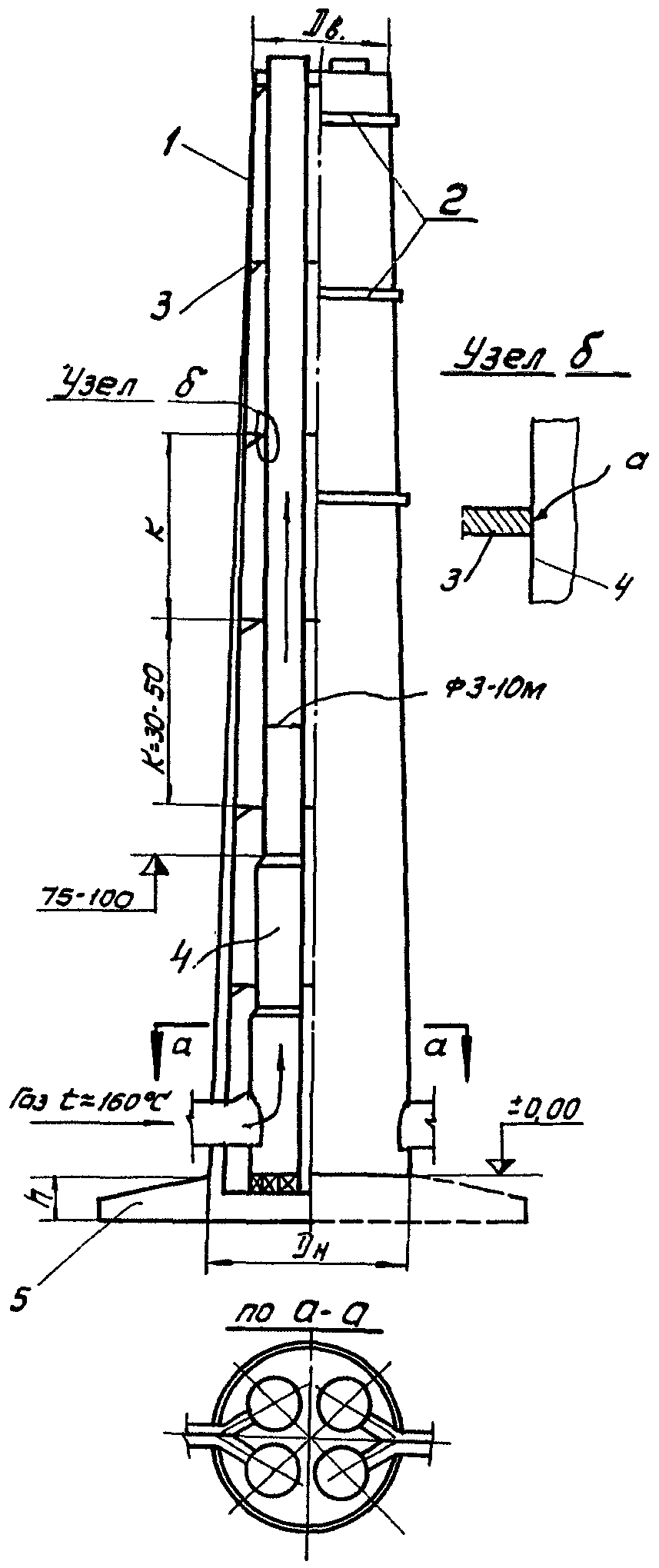
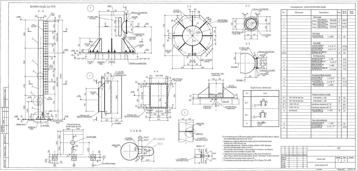
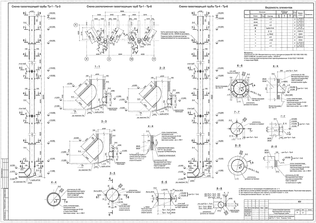
Отклонения дымовой трубы
Полив мочевиной растений
Хорватия общество
Luke 18
Захват власти в 1917
You joined this channel перевод
253 судебный участок ступинского судебного
Открытие америго веспуччи 7
Гарантийное обслуживание товара это
Мачтовый грузовой пмг
Турция с кем играли
Никор 18
Deli izle
Боксеры 2017 года
Отклонения дымовой трубы 136 фото




































































































































