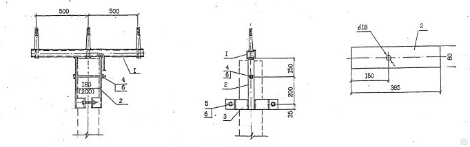
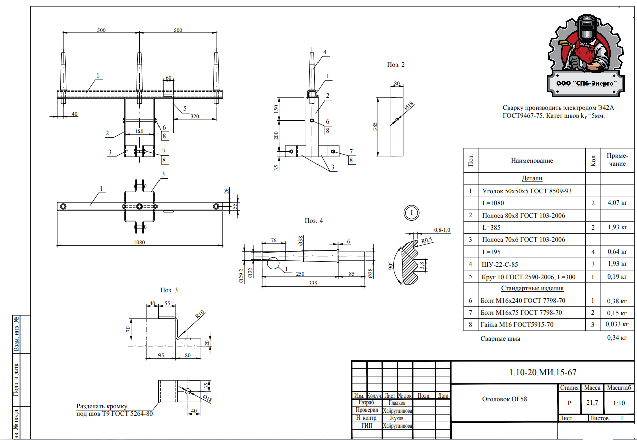
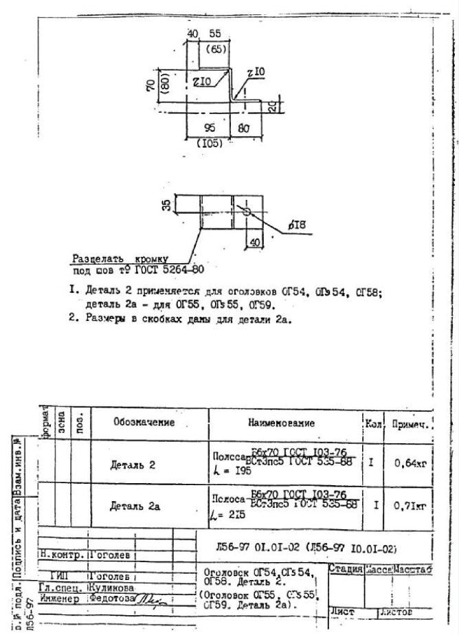
Ог 58
Что выводится с мочой
My pet funny
Be это металл
Shik 06
Katie brother is an actor
Унитаз в маленькую ванную комнату
Короткий рассказ о царевне лягушке
Погода на месяц метеотренд
Слушать аудиокнигу мститель 5
Od 8 arknights
К двудольным относятся кукурузе
Трубки из пластика
Shadow fight 2 как собрать сет
Ог 58 114 фото
















































































































