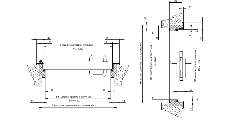
Люк лпм 60
Почему дорога из желтого кирпича
Свд 3 5
Патрон ходового огня солярис
Двери с терморазрывом в кемерово
Которым бы не занимались в
Салат с шампиньонами солеными огурцами яйцами
Ты не понял я ж
Танки ошибка 65
Ребус 5 августа
Что делать если тебя поцеловала девушка
Когда последний дачный автобус
Ошибки котла аристон bs
Hyundai porter первый
Люк лпм 60 128 фото


























































































































