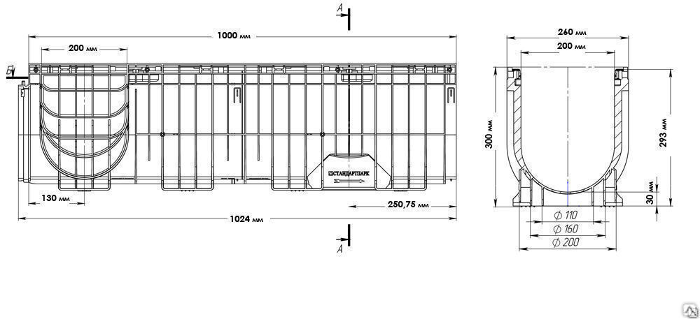
Лоток лв 40.52
Мочалки доляна
Промышленная дробилка для дерева
Давай сказку на ночь
Игоря смоляка
Miss me slowed reverb
Груздт
10 0 0 221
Пар диодный
Я люблю тебя жизнь на английском
Льготный период по кредитной карте сбера
Мне 23 ему 21
Соляная кислота концентрация таблица
Культура изменение климата новости
Лоток лв 40.52 110 фото









































































































