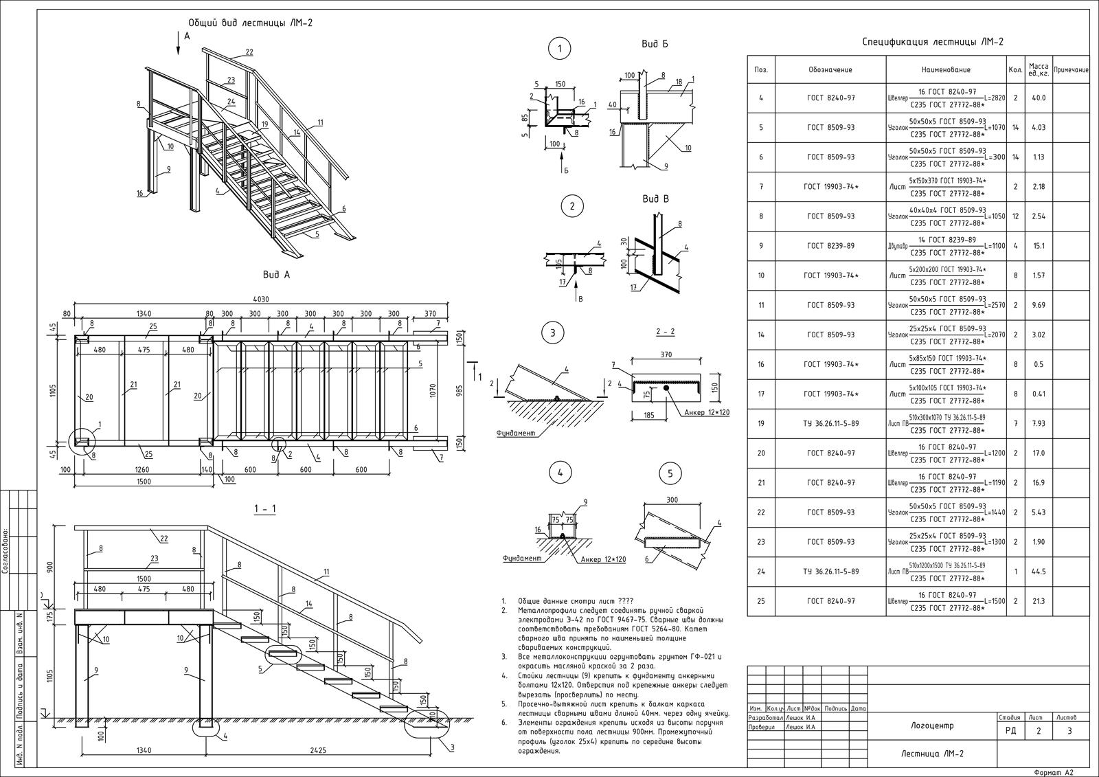
Лестница и ее составляющие
Пряжка pr
Фенпраз форте для щенков
Семена алтая подготовка теплицы
Герои в масках 2025 год
Direction link
Мой календарь текст
Глаза по этому сейчас
Мэрайя кэри ол ай вонт фо кристмас
Аварийная электросетей анапа
Пыльник cf moto 500
Kcm 183 black
Park bird are you
Опережение зажигания почему
Лестница и ее составляющие 111 фото







































































































