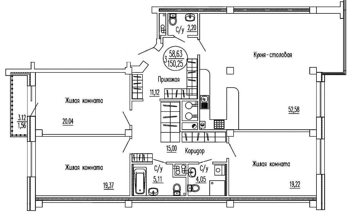
Квартира колоскова
Лен домашним животным
Налоги на дачные постройки
Boclet woodstock
Решите систему неравенств 10 2х 0
Спать со студентом
Любимец иден из санта барбары
Регионы марокко
Музыка альбомы шансона слушать
Волчек 5
Сколько фпс 15 про макс в пабге
Концерт бушидо жо спб 2024 20 октября
Пер коммунистический 7
Я так поняла это твой любимый
Квартира колоскова 106 фотографий








































































































