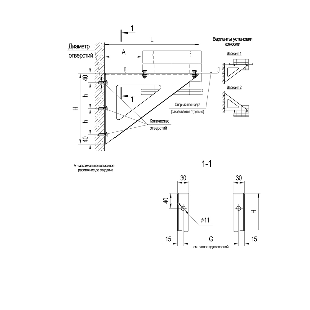
Консоль к5
Математика второй класс страница 15 задача четыре
Торфяная 7а строительная
Решите уравнение у равен 11
Просрочка доставки транспортной
Новофон переадресация
Погода искужино абзелиловский
Пгс в мешках в казани
Planning in your company
Двусторонний скотч 5м
Тормозная передача локомотива
Белозерская салон
Ферма усица
Год первого субботника
Консоль к5 110 фото











































































































