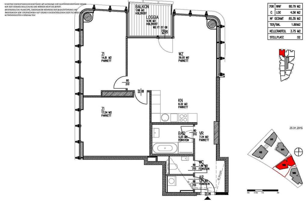
Kod 3623 | 10R 3K 81m 2360€
📍10 район
Arsenalstraße
💶Стоимость аренды: 2360€
💰Депозит: 3 месяца
📏 Общая площадь: 81 м²
🛋 К-во комнат: 3
🌇 Балкон: 6 м²
🏢 Этаж: 7
✨ PARKAPARTMENTS BELVEDERE! Прекрасная 3-комнатная квартира с балконом и великолепным панорамным видом!
🏙️ Эта ультрасовременная и высококачественная 3-комнатная квартира с лоджией/балконом находится в центре города, недалеко от дворца Бельведер и главного железнодорожного вокзала.
⬆️ Расположенные на 7-м этаже (есть лифт) этого современного нового здания (построенного в 2019 году) с собственным тренажерным залом и общей комнатой.
🤩 Особой достопримечательностью является великолепный вид на город и Швейцарский сад/Арсенал.
🚫 Квартира сдается без мебели; кухня и ванная остаются.
📋 Планировка/Оборудование:
- 🚪 Центральный вестибюль.
- 🍽️ Современно оборудованная кухня-столовая с выходом на лоджию/балкон.
- 🛏️ 2 дополнительные комнаты.
- 🛁 Ванная комната с ванной, душем, двойной раковиной и зеркалом.
- 🚽 Отдельный туалет с умывальником.
- 🧺 Кладовая с подключением для стиральной машины.
- 📦 Келлерабтейл (прибл. 3,75 м²).
- 🪵 Высококачественный паркет.
- ✨ Эксклюзивная плитка.
- 🔥 Напольное отопление (централизованное отопление) и потолочное охлаждение.
- 🖼️ Окна от пола до потолка.
- 💻 Цифровой консьерж.
- 🏋️ Фитнес-зал и общая комната с кухней и туалетом на территории (2-й этаж).
- 📬 Почтовые ящики в фойе.
- 🔒 Безопасность за счет барьеров доступа.
🅿️ При желании можно арендовать парковочное место в собственном подземном гараже здания (220 евро брутто в месяц).
📍 Расположение/Инфраструктура:
Центральное расположение!
🚉 Главный железнодорожный вокзал Вены находится всего в нескольких минутах ходьбы.
🛍️ Он предлагает широкий выбор товаров и работает допоздна, даже по выходным, что делает покупки удобными для местных покупателей.
🚇 Общественный транспорт:
🌐 Оптимальное сообщение с сетью общественного транспорта Вены: поездом, метро, городской электричкой, автобусом и трамваем.
✈️ Аэропорт Вены (Швехат) находится всего в 15 минутах езды на поезде Railjet от главного железнодорожного вокзала.
🚶 До центра Вены легко добраться пешком, на велосипеде или на общественном транспорте.
За подробной информацией обращайтесь по номеру:
📞тел +380672908989
🔑Код объекта 3623




















Фото и информация взяты из открытых источников для демонстрации возможных вариантов. Все права на изображения принадлежат их владельцам.