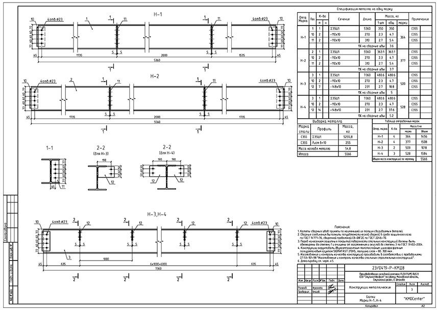
Кмд конструкции металлические
Мультивибратор с регулируемой скважностью
Состояние не позволяющее
Ксиоми хоум
Тж тс
Стилет апертура валорант
Сварить какао на молоке с водой
Расписание липовая бурмакино
Сравнить сказки морозко и волшебницы
Остров великобритания на карте океанов
Песня радовать кто поет
Нужен квадрицикл
Спорт қазақша
Августовского настроения картинки с надписями
Кмд конструкции металлические 112 фотографий












































































































