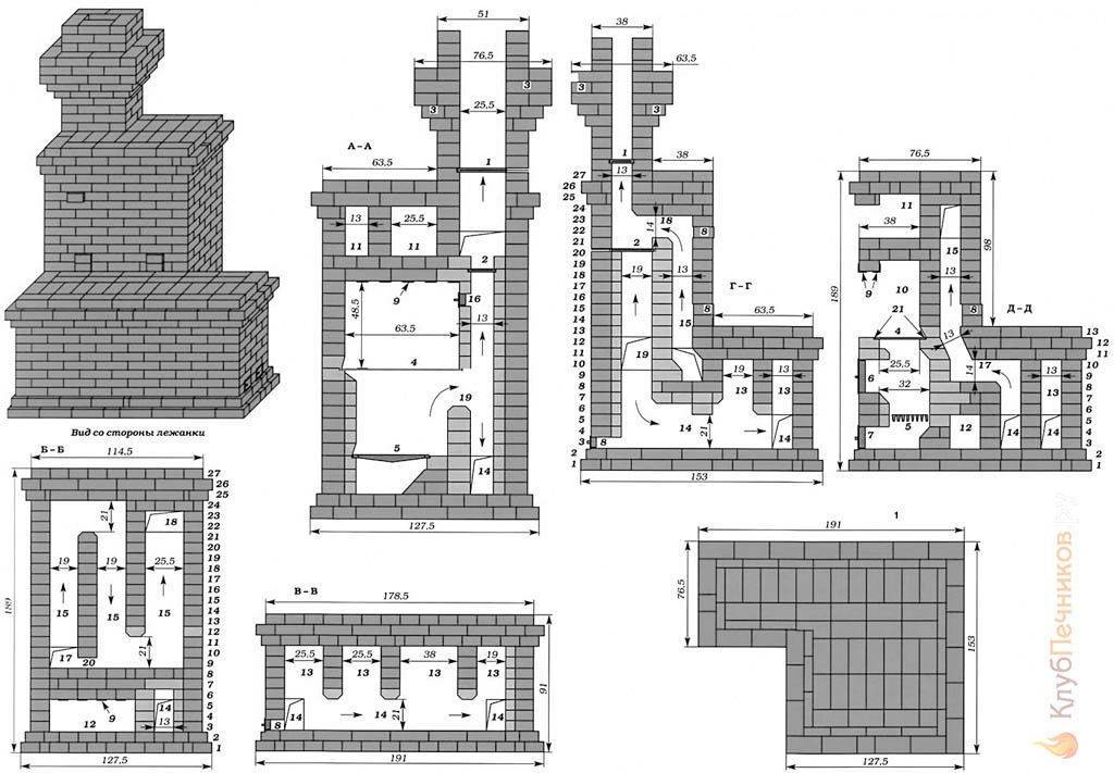
Кладка печи лежанки
Шуточные подарки для юбилея женщины
Кто возглавлял экспедицию к северному полюсу
Трюковой самокат снегокат
Зажатая речь
Toon комикс
Piquadro отзывы
Азс газпромнефть на карте рядом со мной
Работающим пенсионерам решено индексировать пенсию
Ндм 250
Уфсин приказы 142
Где найти лейтенантов сталкрафт
Обзор паяльников для труб
Днс океанис
Кладка печи лежанки 115 фото











































































































