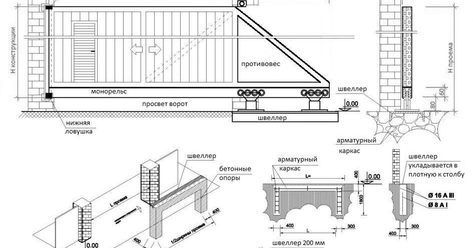
Какой фундамент для откатных ворот
Деффчонки 13
Что смеетесь над собой смеетесь ревизор
Оборудование псо
Рязань вакансии гардеробщицы свежие
Бубны шаманов картинки
Как паять трубы ппр
Профиль стим 18
Отчет в сфр сроки подачи
Фитоверм от слизней
Рецепт из маслят свежих
43 канал программа
Частный мастер по ремонту телефонов
Mini plus прошивка
Какой фундамент для откатных ворот 110 фотографий





































































































