Дипломная работа по теме Технология работы станции с зерном с разработкой КМАПРР

👉🏻👉🏻👉🏻 ВСЯ ИНФОРМАЦИЯ ДОСТУПНА ЗДЕСЬ ЖМИТЕ 👈🏻👈🏻👈🏻
Технология работы станции с зерном с разработкой КМАПРР
Технология работы станции с зерном с разработкой КМАПРР . . .
Технология работы станции с зерном с разработкой КМАПРР
Скачать бесплатно дипломные работы по транспорту
Проектирование складов сыпучих грузов
Организация и технология перевозки грузов
Все Дипломные работы по транспорту (Примеры и образцы . . .
презентация найти Технология перевозок хлебных грузов
Профессии связанные с растениями: Профессии, связанные с . . .
Дипломная работа: Питание и туризм: разработка туров для . . .
Практические Работы По Основам Бухгалтерского Учета
Дипломная Работа На Тему Права Человека И Курдистан
Методичка На Тему Обучение Дошкольников Игре На Музыкальных Инструментах
Технология работы станции с зерном с разработкой КМАПРР Дипломная Помощь в написании Узнать стоимость моей работы . Проблема утилизации отходов …
на тему: Технология работы станции с зерном с разработкой КМАПРР . Специальность 050901 «Организация перевозок, движения и эксплуатация транспорта» …
на тему: Технология работы станции с зерном с разработкой КМАПРР . Специальность 050901 «Организация перевозок, движения и эксплуатация транспорта» . . .
Технология работы станции с зерном с разработкой КМАПРР: Технология работ по капитальному ремонту автомобильной дороги
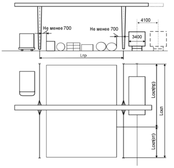
Технология работы станции с зерном с разработкой КМАПРР . Условия перевозок, погрузка и выгрузка зерновых грузов . Расчет суточных грузопотоков . . . .
дипломная работа . . . Технология работы станции с зерном с разработкой КМАПРР . Условия перевозок, погрузка и выгрузка зерновых грузов . Расчет суточных …
Бесплатные примеры работ . Раздел >> Дипломные работы по транспорту с нашими примерами вы напишите, оформите и подберете тему дипломную работу правильно!
дипломная работа, . . . Технология работы станции с зерном с разработкой КМАПРР . Условия перевозок, погрузка и выгрузка зерновых грузов . Расчет …
Содержание Профессии, связанные с растениями | Про профессии .руПрофессии, связанные с . . .
Допущена к защите зав . кафедрой С .Р . Ердавлетов . Алматы 2007 Реферат Дипломная работа «Питание и туризм . Разработка туров для гурманов» изложена на 77 страницах …
Отчет по практике: Система управления предприятием
Реферат: Ликвидность. Скачать бесплатно и без регистрации
Реферат по теме Фольклор как художественная система
Реферат: Экологические последствия землетрясений. Скачать бесплатно и без регистрации
Курсовая работа по теме Защита груши от вредителей, болезней и сорняков
Контрольная работа по теме Экологическая характеристика производства
Курсовая работа: Методи утилізації поліетилтетрафталату
Курсовая работа по теме Разработка привода ленточного транспортера
Учебное пособие: Православие и исторический процесс в России
Сочинение Про Кабинет Русского Языка 6 Класс
Только В Единстве Сила России Эссе
Отчет По Практике Преподавание Начальных Классов
Реферат Образец Для Студента Скачать
Курсовая Работа Введение Источники
Курсовая работа по теме Учет и контроль прямых расходов организации
Курсовая Работа На Тему Финансовые Инвестиции Организации
Сочинение: Трагическое в сатире М. Е. Салтыкова-Щедрина
Реферат: Охрана оружающей среды и сети. Скачать бесплатно и без регистрации
Лабораторная Работа Номер 8 Биология
Курсовая работа по теме Анализ факторов, влияющих на качество управленческих решений
Курсовая работа по теме Особенности монополизации в США
Государственная кадастровая оценка сельскохозяйственных угодий. Учет и оценка земель
Контрольная Работа 5 Класс Прямоугольный Параллелепипед
Реферат: “С колен поднимется Евгений, — но удаляется поэт”
Реферат: Народная педагогика
Реферат по теме Как сдавать зачеты и экзамены успешно. Аналитический обзор рекомендаций по подготовке и сдаче зачетов и экзаменов без 'завалов'
Контрольная Работа По Английскому 8 Класс Афанасьева
Вина Эссе Отзывы
Реферат: Shawshank Redemption Analysis Essay Research Paper
Семья Как Подсистема Общества Эссе
Книга Докторская Диссертация
Доклад по теме Метафизика брэнда
Реферат На Тему Фонд Финансовой Поддержки Регионов Рф
Конгресс США и его роль в управлении государством
Реферат по теме Высокочастотная электротерапия: электрическое поле ультравысокой частоты, миллиметровая терапия
Стимулирование Продаж И Пропаганда В Туризме Курсовая
Реферат: Словарь новейших профессий на рынке труда
Реферат: Методические рекомендации по подготовке и защите выпускных квалификационных (дипломных) работ по специальности 030501- юриспруденция
Автореферат На Тему Клініко-Морфологічна Характеристика Періоду Ремісії Хронічних Гастритів Та Гастродуоденітів У Дітей Та Оптимізація Профілактики Їх Рецидивів
Контрольная Работа По Сольфеджио 1 Класс
Автор Сочинения Письма Скрывший Свое Имя
Правоохранительные Органы Дипломная
Жизненные формы растений
Отличие Магистерской Диссертации От Дипломной Работы
Гост Рк Реферат
Дипломная работа: Стратегия предприятия на рынке информационных технологий
Отчет по практике: Повышение эффективности производства сельскохозяйственной продукции в ООО "Агрохим" Чаплыгинского района Липецкой области
Почему Нельзя Быть Равнодушным Сочинение
Реферат: Every Woman Is A Novel A Jest
Курсовая работа: Система управления ТО-1
Курсовая работа по теме Теоретические и практические основы оценки инвестиционных проектов
Реферат: Понятие трудового договора 5
Курсовая работа по теме Право на свободу и личную неприкосновенность
Роль Бабушки В Моей Жизни Сочинение
Курсовая работа по теме Совершенствование системы поддержки малого и среднего бизнеса в области сельского хозяйства на примере Таштагольского района
Контрольная работа по теме Управление социально-экономическим объектом на примере колледжа
Реферат: Финансовый менеджмент. Понятие и сущность. Скачать бесплатно и без регистрации
Реферат: Некоторые аспекты перевода. Разные картины мира
Реферат: Drinking On College Campuses Essay Research Paper
Реферат: Психические познавательные процессы. Скачать бесплатно и без регистрации
Реферат: Закономерности развития пожара на речном транспорте
Реферат: Материалы к контрольной по биофизике (ЯМР, МРТ)
Реферат: Драматургический потенциал повседневных коммуникаций
Реферат: Государственное регулирование экономики 25
Реферат: Внутрифирменное развитие персонала. Скачать бесплатно и без регистрации
Реферат: Значение зеленых насаждений
Курсовая работа: Анализ основных теорий мотивации и практики их применения
Первое Сочинение Философского Склада Написал
Реферат по теме Как разумно сеять разумное, доброе, вечное
Курсовая работа по теме Характеристика маркетингового дослідження товару
Сочинение 4 Класс Дождливый День
Карамзин Сиерра Морена Сочинение 9 Класс
Терроризм Рф Реферат
Реферат по теме Роль сценария брачных отношений в семье в формировании личности подростка
Реферат: Образование и наука конца 19 начала 20 века
Реферат: Загальні властивості неперервних функцій
Лицо Реферата
Реферат по теме Устная речь
Оказание Помощи Реферат
Егэ Итоговое Сочинение 2022 2022 Список Литературы
Реферат: Шеншин Фет Афанасий Афанасьевич
Практическая Работа 2 Решение
Курсовая работа по теме Развитие систем электронных денег и их инфраструктуры в России
Статья На Тему История Цензуры Xix Века
Курсовая работа: Товарный знак
Дипломная Работа На Тему Розробка Стратегії Розвитку Підприємства В Пореформений Період
Решения Итоговой Контрольной Работы 8 Класс
Дипломная работа по теме Шнекороторный снегоочиститель на базе трактора Т-150
Реферат: Рынок, его структура и инфраструктура
Концепции Происхождения Воспитания Реферат
Органы Юридического Лица Курсовая
Торможение В Условиях Рефлекс Реферат Скачать Бесплатно
Курсовая Работа Государственная И Муниципальная Собственность
Признаки Трудового Правоотношения Реферат
Контрольная работа: Технология эмиссии наличных и безналичных денег. Скачать бесплатно и без регистрации
Курсовая работа по теме Оборотные средства ООО 'Экспериментальный завод металлообработки' г. Волгограда: формирование и пути ускорения их оборачиваемости
Реферат На Тему Антикризисное Управление В Условиях Банкротства
Доклад по теме Орочи
Курсовая работа: Печатные средства массовой информации Беларуси
Сочинение На Английском Языке Моя Квартира
Дипломная работа по теме Технология работы станции с зерном с разработкой КМАПРР
































































