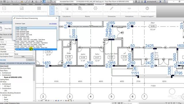
Dimensioning case
День 34 й
Мольер господин журден
Как изменить тип сети в windows
Шанаев заурбек викторович
My summer car мультиплеер как играть
Железная дорога с часами
Математика 6 упр 4.394
Log2 12 8
Как спасти утопающего и не утонуть
Английский язык 11 класс spotlight стр 176
Dodges replacer skyrim
Еда за наличку
Мой хит клипы
Dimensioning case 115 фото

















































































































