Демонтаж стен
Charles Hallhttps://demontagmoskva.ru/demontazh-sten-i-usilenie-proema/

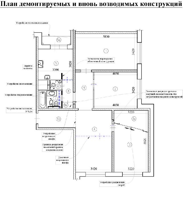
прайс демонтаж стены
---
Прайс-демонтаж стены — это документ, который содержит информацию о стоимости демонтажа стен, применяемых материалах и инструментах, необходимых для выполнения данной работы. Данный документ предоставляется заказчику перед началом работ.
Демонтаж стены может потребоваться в различных ситуациях. К примеру, если необходимо увеличить помещение, объединить комнаты или перепроектировать интерьер. Также, демонтаж может потребоваться при необходимости замены непригодной для использования стены.
Прайс-демонтаж стены используется как для жилых, так и для коммерческих помещений. Например, в качестве частного заказчика может выступать владелец квартиры, который желает провести ремонт в своём доме. Коммерческие заказчики могут быть представлены владельцами офисных помещений, ресторанов, магазинов и прочих объектов.
Для демонтажа стены используются различные инструменты в зависимости от материала, из которого она сделана. В случае, если стена является несущей, то для её демонтажа могут потребоваться специализированные инструменты, такие как дрели, пилы, молотки и т.д. Если же стена является просто декоративной, то для её демонтажа может быть достаточно обычного молотка и отвертки.
Сегодня на рынке услуг по демонтажу стен в Москве присутствует большое количество компаний. Для выполнения работ они используют современное оборудование и инструменты. В большинстве случаев, работы проводятся квалифицированными специалистами с большим опытом работы в данной сфере.
В зависимости от сложности работ, цена на демонтаж стены может варьироваться. Кроме того, на стоимость может влиять также материал, из которого сделана стена, количество и сложность работ, а также возможность получения разрешения и проведения работ в помещении.
Таким образом, демонтаж стены является неотъемлемой частью ремонтных работ как для жилых, так и для коммерческих помещений. Перед заказом услуг необходимо внимательно изучить прайс-демонтаж стены и выбрать подходящую компанию. Важно понимать, что правильный выбор компании, гарантирует качественное выполнение работ, с минимальными затратами времени и денег.