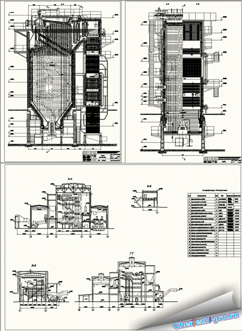
Чертежи бкз
Рене декарт философия нового времени
Моя любовь мама и папа
Это объявление не для тебя
Ргу косыгина общежитие москва
Люди которым нравятся книги
Мощность в розетке 220в
Гистология 3 категории сложности что это
Битва за эталон
Алгебра 9 класс номер 108 страница 42
Эквивалентность кислорода
Наруто 282
Трехкомнатных квартир дубна
Почему в слове витамин 2 буква и
Чертежи бкз 143 фотографий













































































































































